home page > Annunci immobiliari in Italia > Toscana > Massa-Carrara > Carrara > Negozi uffici capannoni in affitto > Scheda immobile

Negozi uffici capannoni in affitto a Carrara

COMPILA IL MODULO SOTTOSTANTE PER RICEVERE MAGGIORI INFORMAZIONI







Invia la richiesta ad altre agenzie
Accetto il trattamento dei miei dati



Sunset immobiliare

Via aurelia, 53
19038 Sarzana (SP)

0187300799

Carrara
Prezzo: € 600
G
4
60
Ultimo piano



Descrizione:
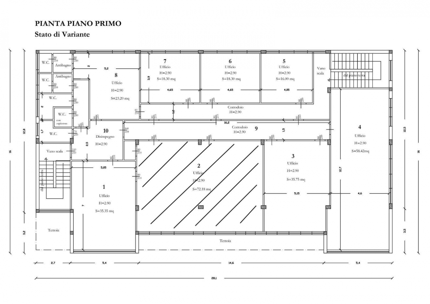
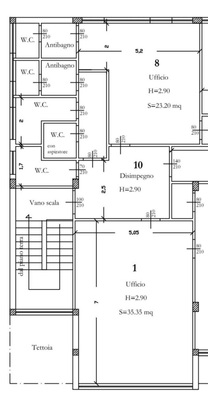
In località nazzano, a carrara, in contesto direzionale e ben collegato, si propongono in locazione 6 uffici indipendenti, con metrature a partire da circa 20 mq, con possibilità di collegamento di più ambienti.ideali per attività professionali che necessitano di ambienti funzionali, facilmente accessibili e dotati di servizi.caratteristiche degli spazi- superfici da circa 20 mq a 60 mq per ufficio - totale unità disponibili: 6 per un totale di circa 300 mq- posti auto riservati all'interno dell'area- servizi igienici dedicati- possibilità di personalizzazione internaattività idealigli uffici si prestano perfettamente per:- studi medici e paramedici- agenzie assicurative- studi tecnici (geometri, architetti, ingegneri)- studi legali e notarili- società di consulenza- servizi amministrativi e contabili- sedi operative di aziende e professionisti- coworking strutturatiil canone è variabile in base alle metrature richieste e al numero di ambienti necessari.soluzione adatta a chi cerca un ambiente professionale, ordinato e pronto all'uso, con tutti i servizi essenziali già disponibili. Classe energetica: g




Caratteristiche immobile:
Codice inserzione: 1775700637
Rif. Annuncio: BU222
Provincia: Massa-Carrara
Comune: Carrara
Superficie (Mq) : 60 Mq.
Tipo immobile: Negozi uffici capannoni
Stato immobile: usato
Piano: Ultimo piano
Bagni: 4

Costi:
Prezzo € 600


Efficienza energetica:
Classe energetica: G
Riscaldamento: autonomo