Modifica ricerca
Vendita - Affitto
Provincia:
Comune:
Tipologia:
Prezzo:
Numero camere:

 Cerca in vendita anche

Immobili in vendita a Massa

 Cerca in affitto anche

Immobili in affitto a Massa

Annunci immobiliari di vendita e affitto a Massa

  Ultimi 30 annunci immobiliari inseriti nel comune di Massa
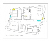
Massa (MS)    |    € 395.000    |    200 Mq    |    Rif. Ms01

 8

Vendita appartamento
A massa centro in posizione tranquilla e defilata ma, a un passo a piedi dai servizi, proponiamo in vendita splendida porzione di villa plurifamiliare: appartamento come nuovo, inserito in una villa plurifamiliare, caratterizzato da spazi ampi e ben distribuiti. Al piano terra si sviluppa la zona giorno, composta da un luminoso soggiorno con cucina a vista, ideale per momenti di convivialità. La zona notte comprende una camera matrimoniale con accesso diretto al giardino, una camera singola e un bagno finestrato. Al **piano seminterrato*...
Visualizza i dettagli >>


Massa (MS)    |    Marina di Massa   |   € 280.000    |    170 Mq    |    Rif. 1377933/2073/mve249

 12

Vendita case e ville a schiera
Rif: mve249 - marina di massa a 100 metri dal mare, zona bondano/ricortola vendesi grande appartamento con ingresso indipendente, libero su tre lati, sito in piccolo fabbricato senza spese condominiali, composto da: cucina abitabile, sala pranzo, salone, tre camere matrimoniali, due bagni finestrati, balcone, ampia cantina al piano interrato, corte esclusiva, terreno adiacente con box doppio e vari posti auto. Possibilità di frazionare in due unità abitative. Nb alcuni dati presenti in questa scheda potrebbero essere approssimativ...
Visualizza i dettagli >>


Massa (MS)    |    Marina di Massa   |   € 310.000    |    105 Mq    |    Rif. 1388963/1524/k182

 8

Vendita appartamento
Rif: k182 - marina di massa, a circa 1 km dal mare e in posizione comoda a tutti i principali servizi, proponiamo in vendita un appartamento disposto su due livelli facente parte di un fabbricato condominiale di recente costruzione, inserito in un contesto ordinato e ben curato.l'ingresso si apre su un ampio e luminoso soggiorno, ambiente accogliente e ben organizzato, collegato alla cucina con accesso diretto a balcone pranzabile, ideale per momenti di relax e convivialità all'aperto. Un comodo disimpegno conduce alla zona notte del pia...
Visualizza i dettagli >>


Massa (MS)    |    Marina di Massa   |   € 200.000    |    58 Mq    |    Rif. 1344916/562/MA1003

 8

Vendita case e ville a schiera
Rif: ma1003 - a marina di massa, a soli 2 km dal mare, proponiamo in vendita graziosa casa a schiera disposta su due livelli. L'immobile si presenta con ingresso al piano terra su luminoso soggiorno con angolo cottura, dal quale si accede direttamente alla corte privata, ideale per momenti di relax all'aperto o per pranzi e cene all'aria aperta.al piano superiore troviamo una spaziosa camera matrimoniale, ben illuminata, e un bagno finestrato. La proprietà è arricchita da due terrazze, perfette per godere degli spazi esterni in og...
Visualizza i dettagli >>


Massa (MS)    |    Ronchi   |   € 270.000    |    70 Mq    |    Rif. 1389168/477/3583

 8

Vendita appartamento
Rif: vendesi a ronchi appartamento vicinissimo al mare, circa 300 metri, al 2 piano senza ascensore e composto da : ingresso su sala, cucina semi-abitabile, 2 camere matrimoniali, 1 bagno con vasca, 2 terrazzi abitabili. Posto auto privato in area condominiale recintata. Abitabile da subito....
Visualizza i dettagli >>


Massa (MS)    |    Marina di Massa   |   € 310.000    |    105 Mq    |    Rif. 1388802/444/LOG-203

 8

Vendita appartamento
Rif: log-203 - appartamento con garage e cantina - marina di massaa circa 1 km dal mare ed in posizione comoda a tutti i principali servizi, appartamento disposto su due livelli facente parte di un fabbricato condominiale di recente costruzione, inserito in un contesto ordinato e ben curato.l' ingresso si apre su un ampio e luminoso soggiorno, ambiente accogliente e ben organizzato, collegato alla cucina con accesso diretto a balcone pranzabile, ideale per momenti di relax e convivialità all'aperto. un comodo disimpegno conduce alla zona...
Visualizza i dettagli >>


Massa (MS)    |    Centro storico   |   € 250.000    |    230 Mq    |    Rif. 1388965/444/LOG-204

 8

Vendita appartamento
Rif: log-204 - massa - centralissimo - grande appartamento a pochi passi dal centro storico.questa interessante soluzione, di ampia metratura, è posta al piano secondo di una palazzina di sole quattro unità (senza ascensore). la casa necessita di lavori di riordino, ma racchiude la potenzialità di diventare una residenza di prestigio con grandi spazi e ambienti raffinati. caratteristiche principali:- facciata e vano scale ristrutturati.- superficie, 230 mq. Costituiti da stanze ben distribuite, da doppi servizi e due balcon...
Visualizza i dettagli >>


Massa (MS)    |    Centro storico   |   € 205.000    |    75 Mq    |    Rif. 1389148/444/LOG-205

 4

Vendita appartamento
Rif: log-205 - massa - appartamento completamente ristrutturato in pieno centroquesta interessante soluzione, al piano rialzato di un palazzo in pieno centro città, è stato oggetto di integrale ristrutturazione terminata nel 2025, e si presenta in perfette condizioni, immediatamente abitabile.sviluppato su una superficie di circa 75 metri netti, si compone di ingresso su soggiorno con uscita sul balcone, cucinotto, due ampie camere matrimoniali e bagno finestrato.a completamento, ripostiglio.no posto auto.comodo a ogni tipo di sev...
Visualizza i dettagli >>


Massa (MS)    |    Marina di Massa   |   € 50.000    |    50 Mq    |    Rif. 1386198/376/MR2082

Vendita negozi uffici capannoni
Rif: mr2082 - marina di massa - si cede attività di bar centralissimo a pochi passi dal centro e dal mare in zona di grande passaggio, canone di affitto mensile per il fondo di € 900,00. solo persone interessate no perditempo....
Visualizza i dettagli >>


Massa (MS)    |    Marina di Massa   |   € 310.000    |    105 Mq    |    Rif. R210

 8

Vendita appartamento
marina di massa, a circa 1 km dal mare e in posizione comoda a tutti i principali servizi, proponiamo in vendita un appartamento disposto su due livelli facente parte di un fabbricato condominiale di recente costruzione, inserito in un contesto ordinato e ben curato. l'ingresso si apre su un ampio e luminoso soggiorno, ambiente accogliente e ben organizzato, collegato alla cucina con accesso diretto a balcone pranzabile, ideale per momenti di relax e convivialità all'aperto. Un comodo disimpegno conduce alla zona notte del piano, compost...
Visualizza i dettagli >>


Massa (MS)    |    Centro storico   |   € 255.000    |    127 Mq    |    Rif. C255-26

 8

Vendita appartamento
Massa - nel cuore pulsante del centro storico di massa, con affaccio su piazza aranci, all'interno di una graziosa palazzina d'epoca composta di poche unità abitative, proponiamo in vendita un appartamento posto al primo piano, l'immobile è stato recentemente ristrutturato con gusto e attenzione ai dettagli.internamente si compone di ingresso in disimpegno, cucina semi-abitabile finestrata dotata di ogni comfort, ampio e luminoso soggiorno con ottime rifiniture; la zona notte si compone di un ampia camera matrimoniale, una camera ...
Visualizza i dettagli >>


Massa (MS)    |    € 110.000    |    130 Mq    |    Rif. 1388601/2127/CHI-0019

 16

Vendita case e ville indipendenti
Rif: chi-0019 - nel borgo di massa antona, caratteristico paese raggiungibile tramite scale, proponiamo terratetto disposto su quattro livelli, inserito in un contesto tranquillo e tipico.al piano terra si trova un locale ad uso deposito, ideale anche come lavanderia o spazio di servizio.tramite scale interne si accede al piano primo, composto da cucina abitabile e bagno.salendo al livello superiore troviamo un ampio soggiorno, luminoso e ben distribuito.all'ultimo piano si sviluppa la zona notte con due camere di grandi dimensioni.soluzione in...
Visualizza i dettagli >>


Massa (MS)    |    Marina di Massa   |   € 750    |    75 Mq    |    Rif. 1330061/2073/ma23

 16

Affitti appartamento
Rif: ma23 - marina di massa zona partaccia- affittasi appartamento in piccola palazzina con ingresso indipendente e giardino privato. L'appartamento completamente ristrutturato è composto da soggiorno, cucina abitabile, due camere da letto matrimoniali, bagno e ripostiglio lavanderia. Ben arredato!!! posto auto privato. Solo referenziati!!!si precisa che alcuni dati presenti in questa scheda potrebbero essere approssimativi (ad es. Indirizzo, sperse condominiali, etc. ) le informazioni dettagliate verranno fornite telefonicamente e su ap...
Visualizza i dettagli >>


Massa (MS)    |    Centro storico   |   € 200.000    |    70 Mq    |    Rif. 1388157/2033/RV231

 3

Vendita appartamento
Rif: rv231 - massa, centro. Proponiamo in vendita appartamento oggetto di recente ristrutturazione, sito al piano rialzato di condominio alle porte del centro città. L'immobile, con una superficie di 70 mq, è composto da: ingresso, soggiorno, cucinotto, due camere matrimoniali e servizio finestrato, oltre balconcino. un'occasione imperdibile per chi cerca praticità e comfort in un contesto nuovo e accogliente....
Visualizza i dettagli >>


Massa (MS)    |    Marina di Massa   |   € 395.000    |    115 Mq    |    Rif. 1388282/1560/V694

 8

Vendita case e ville a schiera
Rif: v694 - marina di massa, a 100 mt dal mare e da tutti i servizi, villetta a schiera d'angolo, libera su tre lati, con giardino privato e garage, cosù composta: piano rialzato - ingresso-soggiorno, cucinotto, bagno e due balconi da cui si accede al giardino esterno; piano primo due camere con balcone e bagno; piano seminterrato ampio vano aperto adibito a taverna con camino o terza camera; garage di proprietà e posto auto nell'area condominiale. Ottimo come appoggio mare o da mettere a reddito!!! posizione inviadiabile!!! mare ...
Visualizza i dettagli >>


Massa (MS)    |    € 25.000    |    26 Mq    |    Rif. 1386532/1532/1539

 8

Vendita negozi uffici capannoni
Rif: massa, zona ortola a 10 minuti dal centro proponiamo fondo commerciale in ottima posizione strategica di forte passaggio. la soluzione si trova al piano terra ed è composto da 1 vano di 26 mq con luminosa vetrina, piccolo ripostiglio (finestrato) e bagno con finestra e portafinestra dalla quale si può accedere sul retro . a completare un piccola resede esterna di 10 mq che affaccia direttamente sulla strada principale.il fondo si presta perfettamente a qualsiasi attività commerciale e rappresenta un'opportunità ...
Visualizza i dettagli >>


Massa (MS)    |    Marina di Massa   |   € 700    |    67 Mq    |    Rif. 1346544/1524/k179

 8

Affitti appartamento
Rif: k179 - affitto transitorio libero da febbraio 2026, questo accogliente appartamento si trova al piano rialzato di una tranquilla trifamiliare. L'ingresso, direttamente dal terrazzino privato che affaccia su un curato giardino di proprietà, offre un'atmosfera riservata e rilassante.l'interno, luminoso e ben distribuito, comprende un ampio soggiorno con cucina a vista, ideale per trascorrere momenti di relax o cene in compagnia. La zona notte si compone di una spaziosa camera matrimoniale, una cameretta perfetta per una seconda person...
Visualizza i dettagli >>


Massa (MS)    |    € 240.000    |    145 Mq    |    Rif. 1388521/577/748

 8

Vendita negozi uffici capannoni
Rif: massa - viale stazione: in posizione strategica, nel cuore di massa, questo locale commerciale si distingue per la sua eccellente condizione, la sua posizione privilegiata e un'ottima luminosità. Al piano terra, di circa 100mq., questo fondo offre una superficie ideale per attività commerciali di ogni genere. Al piano interrato è presente un ulteriore vano di 45mq. Utilizzabile come magazzino. Posto auto. Ottimo stato e prezzo competitivo di 240.000 euro rendono questa opportunità irrinunciabile per chi cerca un...
Visualizza i dettagli >>


Massa (MS)    |    Ronchi   |   € 420.000    |    85 Mq    |    Rif. 1388530/577/734

 8

Vendita attici
Rif: ronchi: a circa 400 mt. Dal mare, disponibile alla vendita attico con splendida terrazza di circa 50 mq. Posto al terzo ed ultimo piano. L'immobile risulta essere molto luminoso e in buone condizioni. Si compone di ingresso, sala, cucina abitabile, disimpegno notte, due camere da letto matrimoniali e bagno finestrato. La terrazza è perimetrale e permette di pranzare e cenare fuori comodamente!...
Visualizza i dettagli >>


Massa (MS)    |    Ronchi   |   € 420.000    |    85 Mq    |    Rif. 1388604/562/RE444

 8

Vendita attici
Rif: re444 - ronchi a ca 400 metri dal mare splendido attico elegante e confortevole. Situato al terzo piano con ascensore, questo immobile offre una superficie di 85 mq suddivisi in 4 locali oltre una grande terrazza, garantendo ampi spazi e luminosità in ogni angolo.l'attico si presenta in buono stato, pronto per accogliere i nuovi proprietari e offrire un'esperienza di vita di alto livello. La posizione strategica, nella tranquilla zona di ronchi, assicura privacy e comodità, pur essendo vicino a tutti i servizi necessari.un'op...
Visualizza i dettagli >>


Massa (MS)    |    Marina di Massa   |   € 310.000    |    120 Mq    |    Rif. 1388525/477/4591

 8

Vendita appartamento
Rif: appartamento bipiano marina di massa rif 4591a pochi passi dal centro appartamento in palazzina di recente costruzione cosi composta:piano primo ingresso ampio, sala, cucina aperta, camera e bagno e tre balconipiano mansardato tre stanze e servizio.garage ampio e posto auto di proprietà.scopri questo splendido appartamento di 5 locali situato nel cuore di marina di massa. In un contesto di ottimo stato, con una superficie di 120 mq, questo immobile rappresenta un'opportunità unica per chi cerca comfort e raffinatezza. Goditi ...
Visualizza i dettagli >>


Massa (MS)    |    Centro storico   |   € 165.000    |    97 Mq    |    Rif. 1388620/477/SL800

 8

Vendita appartamento
Rif: sl800 - massa. Centralissimo. Vendesi appartamento al piano quarto servito da ascensore. Internamente composto da ingresso su corridoio, soggiorno con accesso ad ampia terrazza pranzabile, camera matrimoniale, camera doppia, bagno finestrato con vasca, ripostiglio. Tutte le stanze hanno accesso diretto ai terrazzi .posizione ottima., molto luminoso. Necessita di lavori di ristrutturazione....
Visualizza i dettagli >>


Massa (MS)    |    € 360.000    |    95 Mq    |    Rif. 1388632/462/4124

 8

Vendita appartamento
Rif: massa, nelle immediate vicinanze del centro si vende prestigioso appartamento in classe energetica a2, al piano primo, di bellissimo e moderno condominio di recentissima costruzione.l'appartamento è composto da ampia zona giorno, prospiciente profonda terrazza e con cucina a vista, zona notte con due camere da letto, entrambe servite da ampio balcone, comodo ripostiglio e due bagni, ciascuno con doccia e finestra. a corredo autorimessa al piano interrato con posto auto di ca. 17 mq e cantina di circa 4 mq.l'intero edificio e' stato ...
Visualizza i dettagli >>


Massa (MS)    |    Marina di Massa   |   € 270.000    |    135 Mq    |    Rif. 1388380/444/LOG-202

 8

Vendita case e ville a schiera
Rif: log-202 - marina di massa - zona centrale - a 1.800 m dal marevilletta a schiera con quattro camere e corte esterna, oltre a posto auto.la villetta al piano terra è composta da ingresso su soggiorno con cucina abitabile a vista, piccolo bagno di servizio e ampia corte esterna piastrellata, dove si trovano anche un forno a legna e un barbecue in muratura.al primo piano ampia camera matrimoniale con balcone, un grande bagno con spaziosa doccia in muratura, salotto studio (o quarta camera, anche se di passaggio) con altro terrazzino;al...
Visualizza i dettagli >>


Massa (MS)    |    € 360.000    |    95 Mq    |    Rif. 1388283/397/26.10

 8

Vendita appartamento
Rif: massa, nelle immediate vicinanze del centro si vende prestigioso appartamento in classe energetica a2, al piano primo, di bellissimo e moderno condominio di recentissima costruzione.l'appartamento è composto da ampia zona giorno, prospiciente profonda terrazza e con cucina a vista, zona notte con due camere da letto, entrambe servite da ampio balcone, comodo ripostiglio e due bagni, ciascuno con doccia e finestra. a corredo autorimessa al piano interrato con posto auto di ca. 17 mq e cantina di circa 4 mq.l'intero edificio e' stato ...
Visualizza i dettagli >>


Massa (MS)    |    € 170.000    |    110 Mq    |    Rif. 1387842/2127/CHI-0020

 15

Vendita appartamento
Rif: chi-0020 - massa, a poche centinaia di metri dal centro città, in contesto bifamiliare, ampio appartamento posto al primo piano, di 110 mq lordi e composto da ingresso, corridoio centrale cucina abitabile, sala, due camere matrimoniali , camera singola, comodo bagno con antibagno, ripostiglio e lungo terrazzo frontale.e inoltre disponibile un ampio sottotetto che ricalca appartamento, con accesso tramite botola.in condizioni più che abitabili. Immobile con ottima esposizione e luminosità...
Visualizza i dettagli >>


Massa (MS)    |    Centro storico   |   € 250.000    |    230 Mq    |    Rif. 1387893/2127/CHI-0018

 16

Vendita appartamento
Rif: chi-0018 - grande appartamento a pochi passi dal centro storico, situato al piano secondo di una palazzina di sole quattro unità (senza ascensore). La casa necessita di alcuni lavori di riordino con la potenzialità di diventare una residenza di prestigio con grandi spazi e ambienti raffinati. caratteristiche principali:- facciata e vano scale ristrutturati.- superficie, 230 mq. Costituiti da stanze ben distribuite, da doppi servizi e due balconi. - versalità, in quanto sono presenti due ingressi sullo stesso pianerotto...
Visualizza i dettagli >>


Massa (MS)    |    Centro storico   |   € 250.000    |    230 Mq    |    Rif. 1387941/1524/a.pic

 8

Vendita appartamento
Rif: a.pic - grande appartamento a pochi passi dal centro storico, situato al piano secondo di una palazzina di sole quattro unità (senza ascensore). La casa necessita di alcuni lavori di riordino con la potenzialità di diventare una residenza di prestigio con grandi spazi e ambienti raffinati. caratteristiche principali:- facciata e vano scale ristrutturati.- superficie, 230 mq. Costituiti da stanze ben distribuite, da doppi servizi e due balconi. - versalità, in quanto sono presenti due ingressi sullo stesso pianerottolo,...
Visualizza i dettagli >>


Massa (MS)    |    Centro storico   |   € 200.000    |    80 Mq    |    Rif. 1387972/1524/4123

 8

Vendita appartamento
Rif: massa, nel cuore di uno dei centri storici più affascinanti e caratteristici di massa, dotato di tutti i principali servizi a portata di mano e situato a pochi minuti dal centro cittadino, proponiamo un appartamento di grande pregio inserito in un piccolo fabbricato provvisto di ascensore ed oggetto di una ristrutturazione completa e radicale, eseguita con tecnologie moderne e impianti di ultima generazione completamente elettrici, pensati per garantire comfort, efficienza e sostenibilità. L'abitazione al secondo piano, di ci...
Visualizza i dettagli >>


Massa (MS)    |    Centro storico   |   € 300.000    |    170 Mq    |    Rif. 1388025/637/CHI-0012

 8

Vendita appartamento
Rif: chi-0012 - massa centro appartamento unico nel suo genere con ampio terreno di proprietàin posizione centrale a massa, proponiamo oggetto raro e difficilmente reperibile, inserito in una palazzina di sole due unità abitative, senza spese condominiali rilevanti e con terreno di proprietà esclusiva di circa 3.000 mq.il terreno, in parte pianeggiante e in parte leggermente scosceso, offre ampie possibilità di utilizzo: zona parcheggio per numerose auto, area giardino, orto o spazi verdi da personalizzare secondo le...
Visualizza i dettagli >>