home page > Annunci immobiliari in Italia > Toscana > Pisa > Capannoli > Case e ville a schiera in vendita > Scheda immobile

Case e ville a schiera in vendita a Capannoli

COMPILA IL MODULO SOTTOSTANTE PER RICEVERE MAGGIORI INFORMAZIONI







Invia la richiesta ad altre agenzie
Accetto il trattamento dei miei dati



Agenzia immobiliare le colline s.r.l.

Corso g. Matteotti n. /a 30
56037 Peccioli (PI)

0587629697    0587636412    Riferimenti: Valerio Fatticcioni

Capannoli
Prezzo: € 418.000
A4
3
2
138
Su più livelli
2



Descrizione:
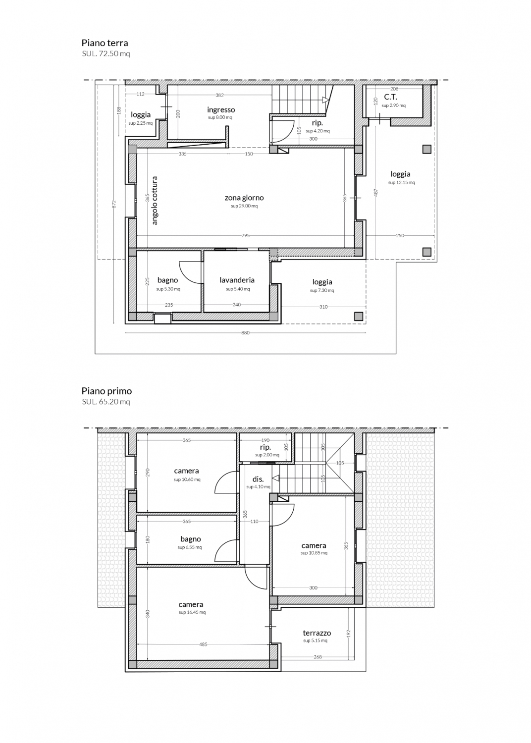
Rif: sp420 - s.pietro belvedere - nuova costruzione di n. 2 villette bifamiliari con ingresso indipendente poste su due livelli, piano terra e primo, in classe energatica a4. Le villette con giardino su tre lati sono composte da loggia d'entrata, ingresso, ampia zona giorno open-space con loggia che affaccia sul giardino, ripostiglio, locale tecnico, lavanderia, bagno e altra loggia esterna al paino terra, da disimpegno notte, camera matrimoniale, due camere signole, bagno e ripostiglio al piano primo. Vista panoramica. Riscaldamento a pavimento con pompa di calore, isolamento termico e acusticopavimento gres porcellanato, impianto fotovoltaico 6 kwh, infissi in pvc con persiane alluminio, predisposizione climatizzazione, allarme, addolcitore, domotica, ventilazione meccanica controllata (vmc), colonnina elettrica, batteria d'accumulo. Possibilità di costruire la piscina. Possbilità di personalizzazione degli interni e dei materiali. Consegna fine 2027.




Caratteristiche immobile:
Codice inserzione: 1769478475
Rif. Annuncio: 1390482/29/SP420
Provincia: Pisa
Comune: Capannoli
Superficie (Mq) : 138 Mq.
Tipo immobile: Case e ville a schiera
Stato immobile: nuovo
Piano: Su più livelli
Camere: 3
Posti auto scoperti: 2 posti auto
Tipologia giardino : Privato
Bagni: 2
Terrazze: 5

Costi:
Prezzo € 418.000


Efficienza energetica:
Classe energetica: A4