home page > Annunci immobiliari in Italia > Toscana > Pisa > Cascina > Case e ville indipendenti in vendita > Scheda immobile

Case e ville indipendenti in vendita a Cascina

COMPILA IL MODULO SOTTOSTANTE PER RICEVERE MAGGIORI INFORMAZIONI







Invia la richiesta ad altre agenzie
Accetto il trattamento dei miei dati



De lillo immobiliare

Via tosco romagnola, 2011
56021 Cascina (PI)

0508665524    Riferimenti: Marilena De lillo

Cascina
Prezzo: € 210.000
G
12
7
520
Piano terra
14



Descrizione:
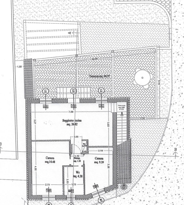
Rif: m1728 - cascina - in località san frediano - adatto per investimento, stabile di 520 mq circa da ristrutturare con possibilità di ricavare fino a 7 unità abitative dal bilocale all'appartamento di 5 vani. Alcuni con ingresso indipendente e giardinetto. ad ogni unità saranno assegnati due poti auto privati nel cortile condominiale accessibile tramite cancello. rif. M1728ce 'g' 160 kwh/mq*anno facciamo presente alla gentile clientela che gli indirizzi riportati sugli annunci sono puramente indicativi. per maggiori informazioni ci trovate a cascina loc. Navacchio, in via tosco romagnola, 2011 oppure potete contattarci ai seguenti recapiti telefonici:




Caratteristiche immobile:
Codice inserzione: 1714440377
Rif. Annuncio: 1139705/364/M1728
Provincia: Pisa
Comune: Cascina
Superficie (Mq) : 520 Mq.
Tipo immobile: Case e ville indipendenti
Stato immobile: usato da riattare
Piano: Piano terra
Camere: 12
Posti auto scoperti: 14 posti auto
Bagni: 7

Costi:
Prezzo € 210.000


Efficienza energetica:
Classe energetica: G
Indice di prestazione energetica (EPgl): 160 kWh/mq annui