home page > Annunci immobiliari in Italia > Toscana > Pisa > Cascina > Case e ville indipendenti in vendita > Scheda immobile

Case e ville indipendenti in vendita a Cascina

COMPILA IL MODULO SOTTOSTANTE PER RICEVERE MAGGIORI INFORMAZIONI







Invia la richiesta ad altre agenzie
Accetto il trattamento dei miei dati



Tirrena immobiliare

Via tosco romagnola, 1607
56021 Cascina (PI)

050775700    Riferimenti: Lorenzo Stefanucci

Cascina
Prezzo: € 140.000
G
3
2
120
Piano terra
3



Descrizione:
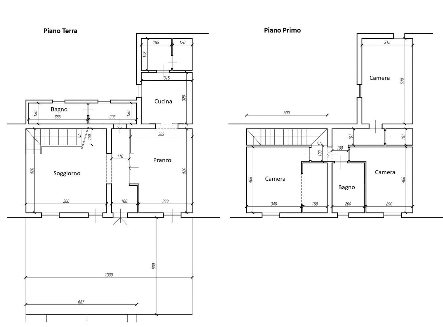
Rif: v.ze cascina - proponiamo in vendita una soluzione indipendente sviluppata su due livelli con accesso sia carrabile che pedonale tramite resede esclusivo.internamente l'immobile necessita di interventi di ristrutturazione e ammodernamento degli impianti, ma offre la possibilità di ridistribuire gli ambienti e personalizzare completamente gli spazi secondo le proprie esigenze.internamente il terratetto è composto al piano terra dall'ampia zona giorno con separata sala pranzo, cucina abitabile, bagno con finestra, lavanderia e ripostiglio. Salendo al primo piano tramite la scala interna dal soggiorno, troviamo 3 camere e un ulteriore bagno finestrato.lo spazio esterno di circa 200 mq, in parte pavimentato, consente comodamente il parcheggio di 2/3 auto ed è ideale per creare una zona living all'aperto, un'area relax o uno spazio dedicato ai bambini.l'immobile offre inoltre un'ottima esposizione, in quanto tutti gli affacci principali sono rivolti a sud, garantendo luminosità costante durante l'arco della giornata e valorizzando lo spazio esterno.questa soluzione rappresenta quindi l'ideale per chi cerca indipendenza, spazio e privacy, con la possibilità di realizzare un'abitazione moderna e personalizzata partendo da una base solida, in una zona tranquilla e riservata ma comunque nelle immediate vicinanze dei principali servizi.per maggiori informazioni o per programmare una visita sul posto, contattare l'agenzia di navacchio indicando il numero di riferimento 4990




Caratteristiche immobile:
Codice inserzione: 1772070481
Rif. Annuncio: 1395993/32/4990
Provincia: Pisa
Comune: Cascina
Zona: Marciana  
Superficie (Mq) : 120 Mq.
Tipo immobile: Case e ville indipendenti
Stato immobile: usato da riattare
Anno costruzione/ristrutturazione: 1978
Piano: Piano terra
Camere: 3
Posti auto scoperti: 3 posti auto
Tipologia giardino : Privato
Bagni: 2

Costi:
Prezzo € 140.000


Efficienza energetica:
Classe energetica: G
Indice di prestazione energetica (EPgl): 235 kWh/mq annui