home page > Annunci immobiliari in Italia > Toscana > Pisa > Fauglia > appartamenti in vendita > Scheda immobile

Appartamento in vendita a Fauglia

COMPILA IL MODULO SOTTOSTANTE PER RICEVERE MAGGIORI INFORMAZIONI







Invia la richiesta ad altre agenzie
Accetto il trattamento dei miei dati



Valerio terreni immobiliare

Via magellano, /a 12
56010 Vicopisano (PI)

3894318324    Riferimenti: Valerio Terreni

Fauglia
Prezzo: € 360.000
G
6
2
260
Piano interrato
1



Descrizione:
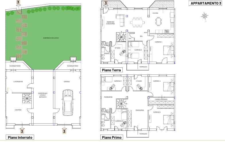
Rif: wv3874aq - acciaiolo (fauglia) - vendesi villetta a schiera di nuova costruzione, centrale, facente parte di una serie di altre 4 villette. Tutte complete di garage, giardino e vari posti auto. Superficie lorda circa 260 mq, 10 vani distribuiti tra piano seminterrato e 1°piano. Nel p. Seminterrato vi sono garage, cantina, lavanderia e locale deposito, a piano terra soggiorno, cucina abitabile, camera matrimoniale, camera singola, studio, bagno con antibagno, ripostiglio e disimpegno, al 1°piano 2 camere matrimoniali, separate dalla cabina armadio, 2 singole, studio e bagno con antibagno, sopra ancora mansarda abitabile. Classe energetica ancora da certificare. Superficie commerciale di quasi 400 mq! prezzo indicativo nell'ordina di € 360.000 € più iva. Rif. Wv3874aq




Caratteristiche immobile:
Codice inserzione: 1767232229
Rif. Annuncio: 1382584/575/WV3874AQ
Provincia: Pisa
Comune: Fauglia
Zona: Acciaiolo  
Superficie (Mq) : 260 Mq.
Tipo immobile: Appartamento
Stato immobile: nuovo
Anno costruzione/ristrutturazione: 2025
Piano: Piano interrato
Camere: 6
Garage: Doppio
Posti auto scoperti: 1 posto auto
Tipologia giardino : Privato
Bagni: 2

Costi:
Prezzo € 360.000


Efficienza energetica:
Classe energetica: G
Indice di prestazione energetica (EPgl): 160 kWh/mq annui