home page > Annunci immobiliari in Italia > Toscana > Pisa > Pontedera > Negozi uffici capannoni in vendita > Scheda immobile

Negozi uffici capannoni in vendita a Pontedera

COMPILA IL MODULO SOTTOSTANTE PER RICEVERE MAGGIORI INFORMAZIONI







Invia la richiesta ad altre agenzie
Accetto il trattamento dei miei dati



La chiave - la fenice agenzia immobiliare

Piazza della concordia, - 3 1
56025 Pontedera (PI)

058752941    Riferimenti: Mauro Bernardeschi

Pontedera
Prezzo: € 820.000
G
1440
Piano terra



Descrizione:
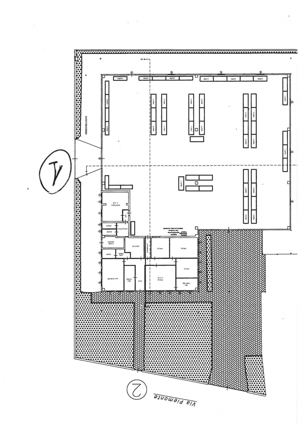
Rif: c - pontedera loc. Zona industriale gelloeccellente capannone corredato di uffici e due aperture per carico e scarico, per un totale di mq1440 oltre piazzale esclusivo su 4 lati, avente altezza di m 5. Questo capannone può essere abbinato ad un capannone adiacente di circa 1000 mq. Dotati di unico anello antincendio. Prezzo di vendita: 820.000 euro. Per informazioni più dettagliate mauro




Caratteristiche immobile:
Codice inserzione: 1757897510
Rif. Annuncio: 1344330/1197/5080C
Provincia: Pisa
Comune: Pontedera
Zona: Gello  
Superficie (Mq) : 1440 Mq.
Tipo immobile: Negozi uffici capannoni
Stato immobile: usato
Piano: Piano terra

Costi:
Prezzo € 820.000


Efficienza energetica:
Classe energetica: G
Indice di prestazione energetica (EPgl): 362 kWh/mc annui