home page > Annunci immobiliari in Italia > Toscana > Pisa > Pontedera > Negozi uffici capannoni in vendita > Scheda immobile

Negozi uffici capannoni in vendita a Pontedera

COMPILA IL MODULO SOTTOSTANTE PER RICEVERE MAGGIORI INFORMAZIONI







Invia la richiesta ad altre agenzie
Accetto il trattamento dei miei dati



L'affare pontedera

Piazza martiri della libertà, 5
56025 Pontedera (PI)

058758352    Riferimenti: Luca Bassi

Pontedera
Prezzo: € 190.000
G
511
Piano terra



Descrizione:
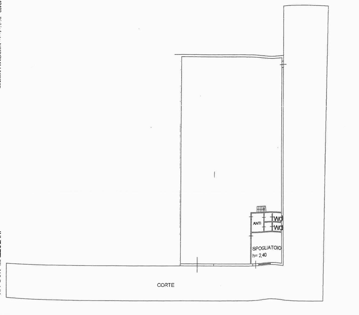
Rif: ic-1 - rif: 8591ic-1 (nostra esclusiva)capannone-pontederaampio capannone industriale in vendita a pontedera, in località la bianca di mq 511 e con un'altezza di 5 ml, con ampio piazzale esclusivo di circa 500 mq.il capannone è dotato di spogliatoio, servizi igienici e uffici.e' in buone condizioni e facilmente accessibile dalla viabilità principale, ubicato nelle immediate vicinanze della super strada fi-pi-li, in prossimità dell'uscita di pontedera.[classe energetica: g]




Caratteristiche immobile:
Codice inserzione: 1773625985
Rif. Annuncio: 1399039/1196/8591IC-1
Provincia: Pisa
Comune: Pontedera
Superficie (Mq) : 511 Mq.
Tipo immobile: Negozi uffici capannoni
Stato immobile: usato
Piano: Piano terra

Costi:
Prezzo € 190.000


Efficienza energetica:
Classe energetica: G
Indice di prestazione energetica (EPgl): 160 kWh/mc annui