home page > Annunci immobiliari in Italia > Toscana > Pisa > Pontedera > Negozi uffici capannoni in vendita > Scheda immobile

Negozi uffici capannoni in vendita a Pontedera

COMPILA IL MODULO SOTTOSTANTE PER RICEVERE MAGGIORI INFORMAZIONI







Invia la richiesta ad altre agenzie
Accetto il trattamento dei miei dati



L'affare pontedera

Piazza martiri della libertà, 5
56025 Pontedera (PI)

058758352    Riferimenti: Luca Bassi

Pontedera
Prezzo: € 690.000
G
1817
Piano terra



Descrizione:
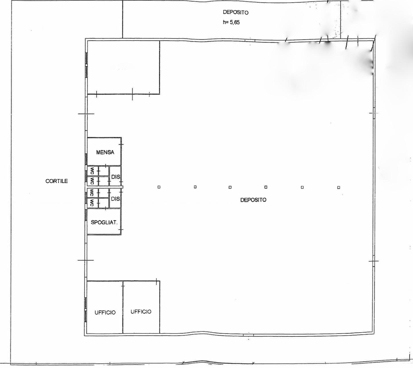
Rif: ic-3 - rif: 8591ic-3zona la bianca, comune di pontederacapannone industriale di 1.817 mq di superficie coperta avente altezza di 5 ml e corredato di circa 1.000 mq di piazzale esterno.possiede due spogliatoi e due servizi igienici.il fabbricato è in ottime condizioni e facilmente accessibile dalla viabilità principale, ubicato nelle immediate vicinanze della superstrada firenze-pisa-livorno in prossimità dell'uscita di pontedera. ottima occasioneclasse energetica g




Caratteristiche immobile:
Codice inserzione: 1773625986
Rif. Annuncio: 1399074/1196/8591IC-3
Provincia: Pisa
Comune: Pontedera
Superficie (Mq) : 1817 Mq.
Tipo immobile: Negozi uffici capannoni
Stato immobile: usato
Piano: Piano terra

Costi:
Prezzo € 690.000


Efficienza energetica:
Classe energetica: G
Indice di prestazione energetica (EPgl): 160 kWh/mc annui