home page > Annunci immobiliari in Italia > Toscana > Pisa > Terricciola > Case e ville a schiera in vendita > Scheda immobile

Case e ville a schiera in vendita a Terricciola

COMPILA IL MODULO SOTTOSTANTE PER RICEVERE MAGGIORI INFORMAZIONI







Invia la richiesta ad altre agenzie
Accetto il trattamento dei miei dati



Toscana immobiliare ponsacco

Via roma, 21
56038 Ponsacco (PI)

3478053518    Riferimenti: Luca Malacarne

Terricciola
Prezzo: € 120.000
G
290
Su più livelli



Descrizione:
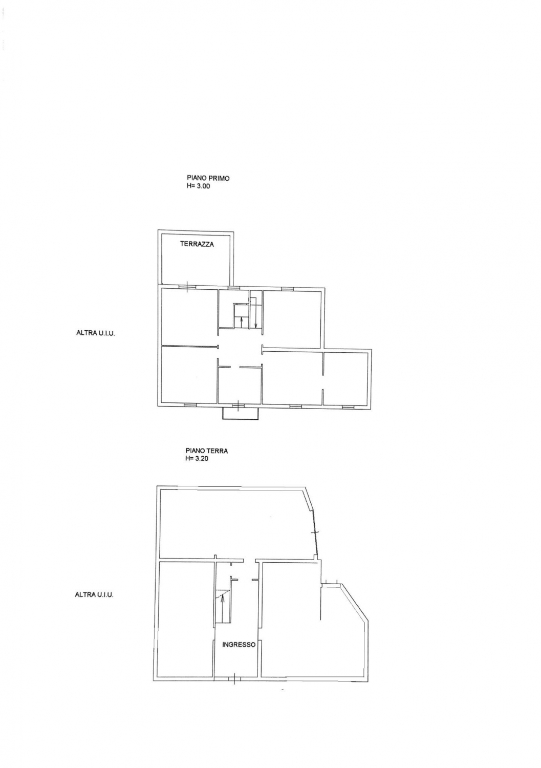
Rif: cr5227 - terricciola, nella frazione di selvatelle, in zona centralissima, vendesi porzione di casa indipendente libera su tre lati!!!!l'immobile necessita di ristrutturazione e si dispone su due livelli di complessivi mq 145 a piano. Al piano terreno attualmente si compone da ampio ingresso per il piano primo di circa 30 mq e tre ampi fondi ad oggi commerciali e ampio locale adibito ad autorimessa di circa 80 mq. Al piano primo ed ultimo, appartamento di circa 145 mq con terrazza abitabile. L'unità si presta per realizzare più unità abitative tutte indipendenti oppure due grandi appartamenti sempre indipendenti oppure una grande soluzione singola!!!




Caratteristiche immobile:
Codice inserzione: 1714443516
Rif. Annuncio: 1122176/633/CR5227
Provincia: Pisa
Comune: Terricciola
Zona: Selvatelle  
Superficie (Mq) : 290 Mq.
Tipo immobile: Case e ville a schiera
Stato immobile: usato da riattare
Piano: Su più livelli
Garage: Doppio
Terrazze: 24

Costi:
Prezzo € 120.000


Efficienza energetica:
Classe energetica: G
Indice di prestazione energetica (EPgl): 160 kWh/mq annui