home page > Annunci immobiliari in Italia > Toscana > Pisa > Vecchiano > Case e ville a schiera in vendita > Scheda immobile

Case e ville a schiera in vendita a Vecchiano

COMPILA IL MODULO SOTTOSTANTE PER RICEVERE MAGGIORI INFORMAZIONI







Invia la richiesta ad altre agenzie
Accetto il trattamento dei miei dati



Ponte d'oro immobiliare

p.zza f. Carrara n. 10
56121 Pisa

3471098764    Riferimenti: Dott.ssa roberta Taddei

Vecchiano
Prezzo: € 693.000
3
3
220
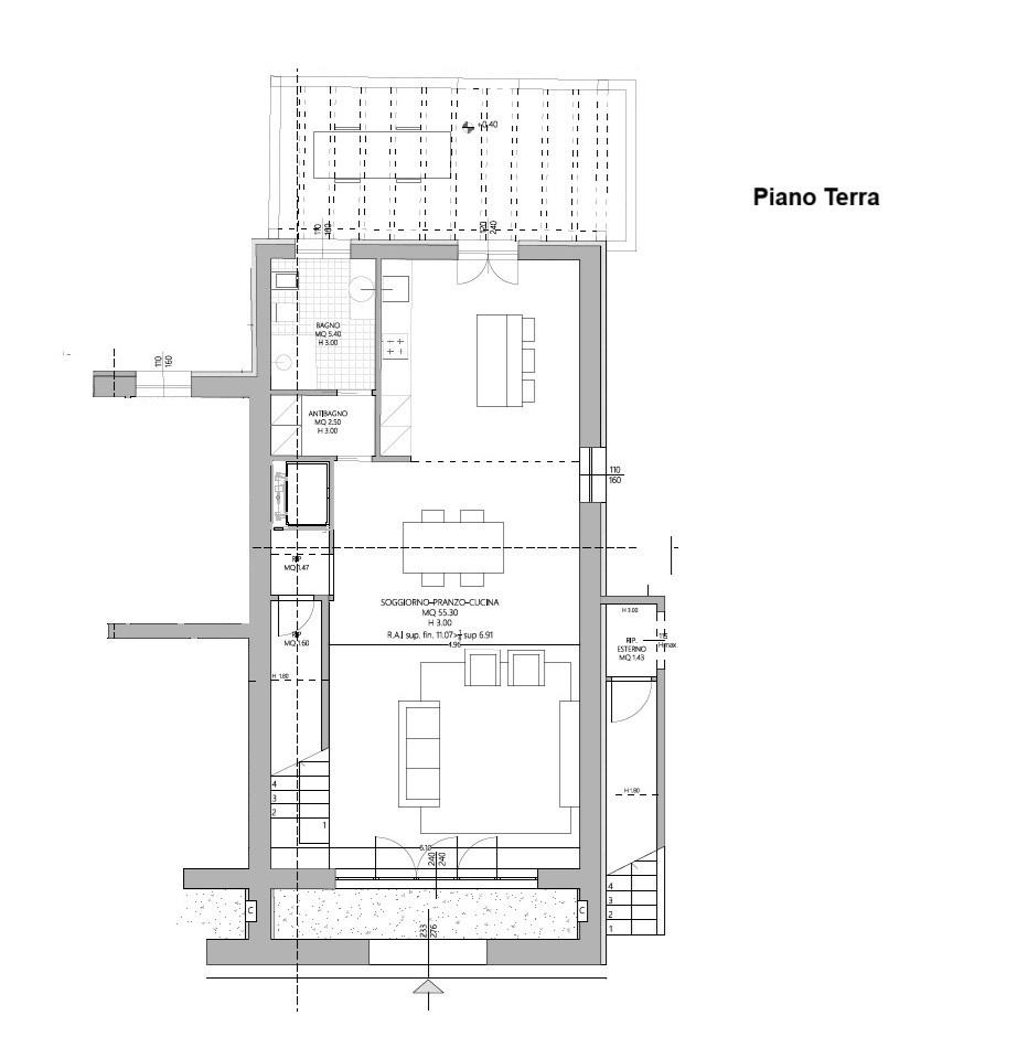
Piano terra
2



Descrizione:
Rif: bm/5 - là dove il tempo sembra scorrere più lento, un antico rustico toscano ha ritrovato nuova vita.in posizione tranquilla e immersa nel verde, proponiamo un antico rustico toscano, completamente ristrutturato con cura e rispetto, oggi accoglie cinque residenze indipendenti, ognuna con una propria anima: antiche pietre, travi in legno, luce naturale che filtra dolcemente tra le logge e i giardini, una combinazione tra il carattere autentico dell'architettura rurale con tecnologie e comfort moderni.un rifugio autentico dove la bellezza del passato incontra l'eleganza del presente, pensato per chi cerca armonia, comfort e autenticità nel cuore della campagna toscana.la porzione centrale di mq 220 è cosù composta:caratteristiche principali• ampio soggiorno - pranzo con zona cottura a vista • ripostiglio, antibagno e bagno • al piano superiore:â—¦ due camere matrimonialeâ—¦ una camera matrimoniale con soppalcoâ—¦ bagno • predisposizione per ascensore interno (dal piano terra al primo piano)• rifiniture personalizzabili per soddisfare ogni esigenza estetica e funzionalecomfort, tecnologia e sostenibilità• classe energetica a4 massima efficienza e risparmio sui consumi• impianti tecnologicamente avanzati e isolamento termoacustico di nuova generazione• possibilità di usufruire del mutuo green per immobili ad alta prestazione energetica• materiali naturali e finiture di pregio che uniscono design moderno e tradizione toscanaarchitettura e stilela porzione di rustico si combina armoniosamente con lo stile rustico toscano e architettura moderna.travi a vista, ampie aperture vetrate e linee pulite donano eleganza e luminosità, mentre i dettagli architettonici contemporanei rendono questa abitazione unica nel suo genere.un progetto pensato per chi desidera vivere in una casa efficiente, confortevole e raffinata, circondata dal verde e dalla tranquillità del contesto toscano.posizionesituata in una delle aree più ricercate di migliarino (vecchiano), la villa gode di una posizione strategica:• vicina al centro del paese e a tutti i principali servizi• a pochi minuti da pisa, lucca, viareggio e marina di vecchiano• a ridosso del parco naturale di san rossore, perfetto per chi ama la natura e la vita all'aria apertauna porzione di rustico efficiente e sostenibile, dove comfort, natura e design si incontrano.contattaci per scoprire i progetti, visionare le planimetrie e personalizzare le finiture della tua nuova casa di pregio in toscana.




Caratteristiche immobile:
Codice inserzione: 1761267100
Rif. Annuncio: 1354907/1338/BM/5
Provincia: Pisa
Comune: Vecchiano
Superficie (Mq) : 220 Mq.
Tipo immobile: Case e ville a schiera
Stato immobile: nuovo
Piano: Piano terra
Camere: 3
Posti auto scoperti: 2 posti auto
Tipologia giardino : Privato
Bagni: 3

Costi:
Prezzo € 693.000


Efficienza energetica: