Descrizione:
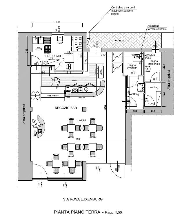
Stazione di montale nostra esclusiva fondo commerciale di 85mq circa con ottima visibilità, posto al piano terra di complesso di recente costruzione in via rosa luxemburg, 17, suddiviso in un unico ampio vano, oltre a retro bottega, due antibagni e doppi servizi uno dei quali per disabili e terrazza. Completa la proprietà cantina di circa 12mq. Attualmente adibito a bar. Perfetto per ogni attività commerciale. spese condominiali molto basse circa 270 euro all'anno. il condominio è in perfetto stato di manutenzione con tetto e facciate rifatte con bonus 110 . Classe energetica: 'g' = 285.9 kwh/mq annuo. Eu. 106.000 rif. 1998 classe energetica: g epi: 285,9 kwh/m3 anno