Descrizione:
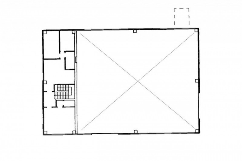
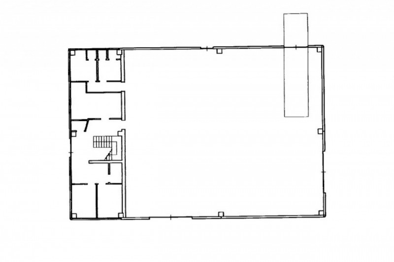
Vendesi capannone con corte esclusiva e stradello sito a casole d'elsa (si), località il piano, via casole cavallano 101. Il contesto è periferico, tranquillo e poco trafficato. La zona è dotata degli standard urbanistici primari, ben collegata al centro del paese ove si trovano i principali servizi e al raccordo autostradale firenze-siena. Area caratterizzata da edifici industriali posti lungo le strade principali e circondati da terreni agricoli. Trattasi di capannone industriale realizzato nel 2004 su area privata non recintata. Struttura in cemento armato prefabbricato con copertura piana. Opificio adibito alla lavorazione dei marmi. Laboratorio a doppia altezza con avancorpo elevato su due piani, comprendente uffici, mensa, spogliatoi, wc ed alloggio custode. Blocco interno servito da corpo scala. Finiture e impianti standard, adatti ad attività artigianali. Climatizzazione ad aria. Capannone dotato di due portoni carrabili e ampie finestre a nastro. Cortile sterrato ed illuminato, con stradello di accesso utilizzato anche il vicino capannone di altrui proprietà. Condizioni buone.per maggiori dettagli consultare i documenti allegati.ape in corso di definizionesuperficie commerciale: 1066 mqpiena proprietà di:capannone (cf): foglio 3 particella 346 subalterno 1 d/1cortile graffato (cf): foglio 3 particella 346 subalterno 2 d/1alloggio (cf): foglio 3 particella 346 subalterno 3 a/4parti comuni (cf): foglio 3 particella 346 subalterni 4 e 5 bcncarea di sedime (ct): foglio 3 particella 346 ente urbano