home page > Annunci immobiliari in Italia > Toscana > Siena > Colle di Val d'Elsa > Negozi uffici capannoni in vendita > Scheda immobile

Negozi uffici capannoni in vendita a Colle di Val d'Elsa

COMPILA IL MODULO SOTTOSTANTE PER RICEVERE MAGGIORI INFORMAZIONI







Invia la richiesta ad altre agenzie
Accetto il trattamento dei miei dati



Quimmo agency

Via galileo galilei 6
48018 Faenza (RA)

0299944698

Colle di Val d'Elsa
Prezzo: € 206.000
420



Descrizione:
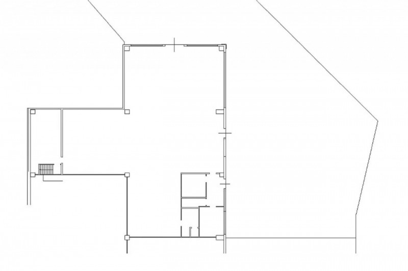
Vendesi porzione di capannone ad uso laboratorio sito a colle di val d'elsa (si), viale dei mille 100 (int 1-2-3). Il contesto è semicentrale, tranquillo e con trafficato regolare. La zona è urbanizzata, dotata di ogni servizio, ben collegata al paese e agli altri centri urbani dal raccordo autostradale siena-firenze. Area mista caratterizzata da edifici artigianali e commerciali, oltre ad insediamenti residenziali, nelle vicinanze del fiume elsa. L'unità è parte di un capannone produttivo realizzato nel 2004, con struttura in cemento armato e copertura piana. Trattasi di laboratorio al piano seminterrato in passato adibito a carrozzeria. E' composto da ampio lolace artigiano con blocco per uffici, archivio e servizi, oltre a ripostiglio con sovrastante soppalco. Finiture e impianti standard, adatti ad attività artigianali. Pavimenti in piastrelle, finestre a nastro, portoni carrabili e impianto antincendio. Climatizzazione ad aria zona uffici. Incluso resede esclusivo asfaltato e recintato sviluppato sui lati liberi. Locale non visibile dalla strada, ma collegato ad essa da vialetto pendente. Immobile libero. Condizioni buone.per maggiori dettagli consultare i documenti allegati.ape in corso di definizionesuperficie commerciale: 420,8 mqpiena proprietà di:laboratorio (cf): foglio 53 particella 652 subalterno 27 c/3cortile graffato (cg): foglio 53 particella 652 subalterno 24 c/3




Caratteristiche immobile:
Codice inserzione: 1757386793
Rif. Annuncio: 14787
Provincia: Siena
Comune: Colle di Val d'Elsa
Superficie (Mq) : 420 Mq.
Tipo immobile: Negozi uffici capannoni
Stato immobile: usato
Anno costruzione/ristrutturazione: 2004

Costi:
Prezzo € 206.000


Efficienza energetica:
Riscaldamento: autonomo