home page > Annunci immobiliari in Italia > Toscana > Siena > Colle di Val d'Elsa > Terreni in vendita > Scheda immobile

Terreni in vendita a Colle di Val d'Elsa

COMPILA IL MODULO SOTTOSTANTE PER RICEVERE MAGGIORI INFORMAZIONI







Invia la richiesta ad altre agenzie
Accetto il trattamento dei miei dati



Dott. Marco salvi maccianti

Via cosimo rosselli 7/c
50121 Firenze

3496715221

Colle di Val d'Elsa
Prezzo: € 180.000
A1
3
2
130
Piano terra



Descrizione:
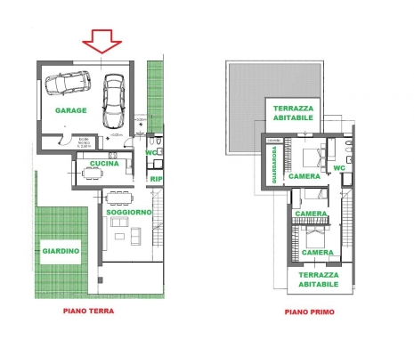
Terreno edificabile per nuova costruzione in classe a, con ampio giardino di proprietà circa 600mq, in zona collinare vicino 'le grazie', nella parte alta di colle val d'elsa.la tipologia è bifamiliare, è libera su tre lati con accesso pedonale e carrabile esclusivo ed indipendente.la disposizione ela distribuzione degli spazi interni sono stati pensati per un nucleo familiare di 4-5 persone, è possbile in questa fase personalizzare gli ambienti e organizzare gli ambienti in base alle proprie necessità.il progetto è già stato concessionato.si svilupparà su due piani:al piano terra è presente un garage di circa 25mq oltre a cantina, cucina abitabile soggiorno con ampia finestra sul verde privato, oltre al bagno.al piano primo si trovano 3 camere un bagno grande e due ampie terrazze panoramiche.le superfici indicate sono sucettibili di cambiamento epr venire incontro alle esigenze del potenziale acqirente.disclaimer. le informazioni e le fotografie contenute nel presente annuncio pubblicitario hanno lo scopo meramente informativo e non costituiscono in alcun modo elemento contrattuale. Classe energetica: a epi: 60 kwh/m2 anno




Caratteristiche immobile:
Codice inserzione: 1714363063
Rif. Annuncio: terreno edificabile LE GRAZIE
Provincia: Siena
Comune: Colle di Val d'Elsa
Zona: Le Grazie  
Superficie (Mq) : 130 Mq.
Tipo immobile: Terreni
Stato immobile: nuovo
Piano: Piano terra
Camere: 3
Garage: Singolo
Bagni: 2
Terrazze: 1

Costi:
Prezzo € 180.000


Efficienza energetica:
Classe energetica: A1
Indice di prestazione energetica (EPgl): 60 kWh/mc annui
Riscaldamento: autonomo