home page > Annunci immobiliari in Italia > Toscana > Siena > Montepulciano > appartamenti in vendita > Scheda immobile

Appartamento in vendita a Montepulciano

COMPILA IL MODULO SOTTOSTANTE PER RICEVERE MAGGIORI INFORMAZIONI







Invia la richiesta ad altre agenzie
Accetto il trattamento dei miei dati



Vittori servizi immobiliari

Via del poggiolo 4
53049 Torrita di Siena (SI)

0577686763    0577686763    3456893156    Riferimenti: Mirko Vittori

Montepulciano
Prezzo: € 153.000
C
3
2
100
1



Descrizione:
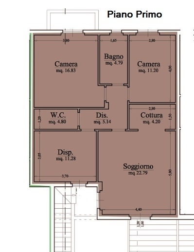
In nuova zona residenzale, proponiamo la vendita di nuovi appartamenti da mq. 80 a mq. 100, tutti con ingresso e servizi autonomi e resede pertinenziale. Zona giorno con soggiorno-pranzo e cucina, zona notte con possibilità di avere due o tre camere. Doppi servizi. Corredati di garage doppio (mq. 40) con accesso diretto dalla proprietà. Possibilità di personalizzazioni per quanto concerne la scelta delle rifiniture interne (pavimenti e rivestimenti). Prezzi a partire da € 153.000 chiavi in mano




Caratteristiche immobile:
Codice inserzione: 1763005198
Rif. Annuncio: VA11
Provincia: Siena
Comune: Montepulciano
Zona: Abbadia  
Superficie (Mq) : 100 Mq.
Tipo immobile: Appartamento
Stato immobile: nuovo
Piano: 1
Camere: 3
Bagni: 2
Terrazze: 1

Costi:
Prezzo € 153.000


Efficienza energetica:
Classe energetica: C
Indice di prestazione energetica (EPgl): 95 kWh/mq annui
Riscaldamento: autonomo