home page > Annunci immobiliari in Italia > Toscana > Siena > Montepulciano > Rustici in vendita > Scheda immobile

Rustici in vendita a Montepulciano

COMPILA IL MODULO SOTTOSTANTE PER RICEVERE MAGGIORI INFORMAZIONI







Invia la richiesta ad altre agenzie
Accetto il trattamento dei miei dati



Immobiliare rappuoli srl

Via trieste 116-118
53048 Sinalunga (SI)

0577678830    Riferimenti: Angelina Rappuoli

Montepulciano
Prezzo: € 150.000
G
2
1
183
Piano terra



Descrizione:
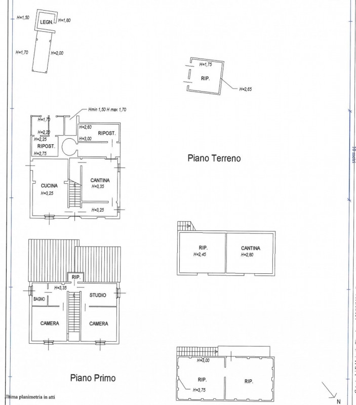
Scopri questo incantevole casale di mq 183 situato nella tranquilla zona di abbadia, nel cuore della splendida campagna toscana. Disposto su due livelli, al piano terra troverai una cantina storica, un antico forno e tre ripostigli che offrono ampio spazio per il tuo hobby o necessità di stoccaggio. L'ampia cucina è perfetta per preparare piatti tipici locali da gustare con amici e familiari.al primo piano si trovano uno studio luminoso, ideale per lavorare da casa, un bagno ben arredato e due camere accoglienti che promettono notti serene.in aggiunta alla struttura principale, l'immobile include un annesso distaccato su due livelli di mq 110, un garage spazioso di mq 25 e un fienile caratteristico di mq 51. Il terreno circostante misura oltre 2000 metri quadrati ed è seminativo; c'è anche la possibilità acquisto ulteriore terreno fino a 5 ettari.immobiliare rappuoli offre un servizio completo di assistenza, accompagnandovi in ogni fase del progetto, dalla personalizzazione e restauro dell'edificio fino alla consegna 'chiavi in mano'. Grazie a una rete di professionisti e imprenditori locali altamente qualificati, garantiamo soluzioni su misura per ogni esigenza, con un supporto costante e professionale.la posizione strategica del casale consente facili collegamenti con le città vicine come montepulciano e pienza, rinomate per i loro paesaggi mozzafiato e le tradizioni culinarie. Immerso nella natura incontaminata ma vicino ai servizi essenziali,questo immobile rappresenta la fusione perfetta tra tranquillità rurale e comodità moderna.non perdere questa opportunità unica! contatta subito l'agenzia immobiliare riferimento per ulteriori informazioni o per prenotare una visita.




Caratteristiche immobile:
Codice inserzione: 1758596235
Rif. Annuncio: CL267
Provincia: Siena
Comune: Montepulciano
Zona: Abbadia  
Superficie (Mq) : 183 Mq.
Tipo immobile: Rustici
Stato immobile: usato
Piano: Piano terra
Camere: 2
Garage: Singolo
Bagni: 1

Costi:
Prezzo € 150.000


Efficienza energetica:
Classe energetica: G
Indice di prestazione energetica (EPgl): 527.81 kWh/mq annui