home page > Annunci immobiliari in Italia > Toscana > Siena > Monteroni d'Arbia > Attività commerciali in vendita > Scheda immobile

Attività commerciali in vendita a Monteroni d'Arbia

COMPILA IL MODULO SOTTOSTANTE PER RICEVERE MAGGIORI INFORMAZIONI







Invia la richiesta ad altre agenzie
Accetto il trattamento dei miei dati



Ad immobiliare di brogi gianni

Via cassia nord 22
53035 Monteriggioni (SI)

0577594494    3385495159    Riferimenti: BROGI/GIANNI

Monteroni d'Arbia
Prezzo: € 120.000
G
125



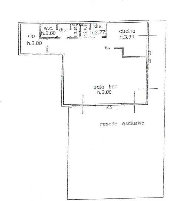
Descrizione:
Monteroni d arbia in strada di grande passaggio si vende fondo accatastato in c1 (negozi e botteghe) ad oggi adibito a bar con un contratto di affitto di circa 130 mq e con un grande resede esclusivo. per informazioni classe energetica: g - ipe: 0.00kwh/mc anno




Caratteristiche immobile:
Codice inserzione: 1776138591
Rif. Annuncio: FV72
Provincia: Siena
Comune: Monteroni d'Arbia
Superficie (Mq) : 125 Mq.
Tipo immobile: Attività commerciali

Costi:
Prezzo € 120.000


Efficienza energetica:
Classe energetica: G
Riscaldamento: autonomo