home page > Annunci immobiliari in Italia > Toscana > Siena > Poggibonsi > Negozi uffici capannoni in vendita > Scheda immobile

Negozi uffici capannoni in vendita a Poggibonsi

COMPILA IL MODULO SOTTOSTANTE PER RICEVERE MAGGIORI INFORMAZIONI







Invia la richiesta ad altre agenzie
Accetto il trattamento dei miei dati



Agenzia immobiliare romano

Via montegrappa 127
53036 Poggibonsi (SI)

0577938558

Poggibonsi
Prezzo: € 110.000
G
1
115
Ultimo piano



Descrizione:
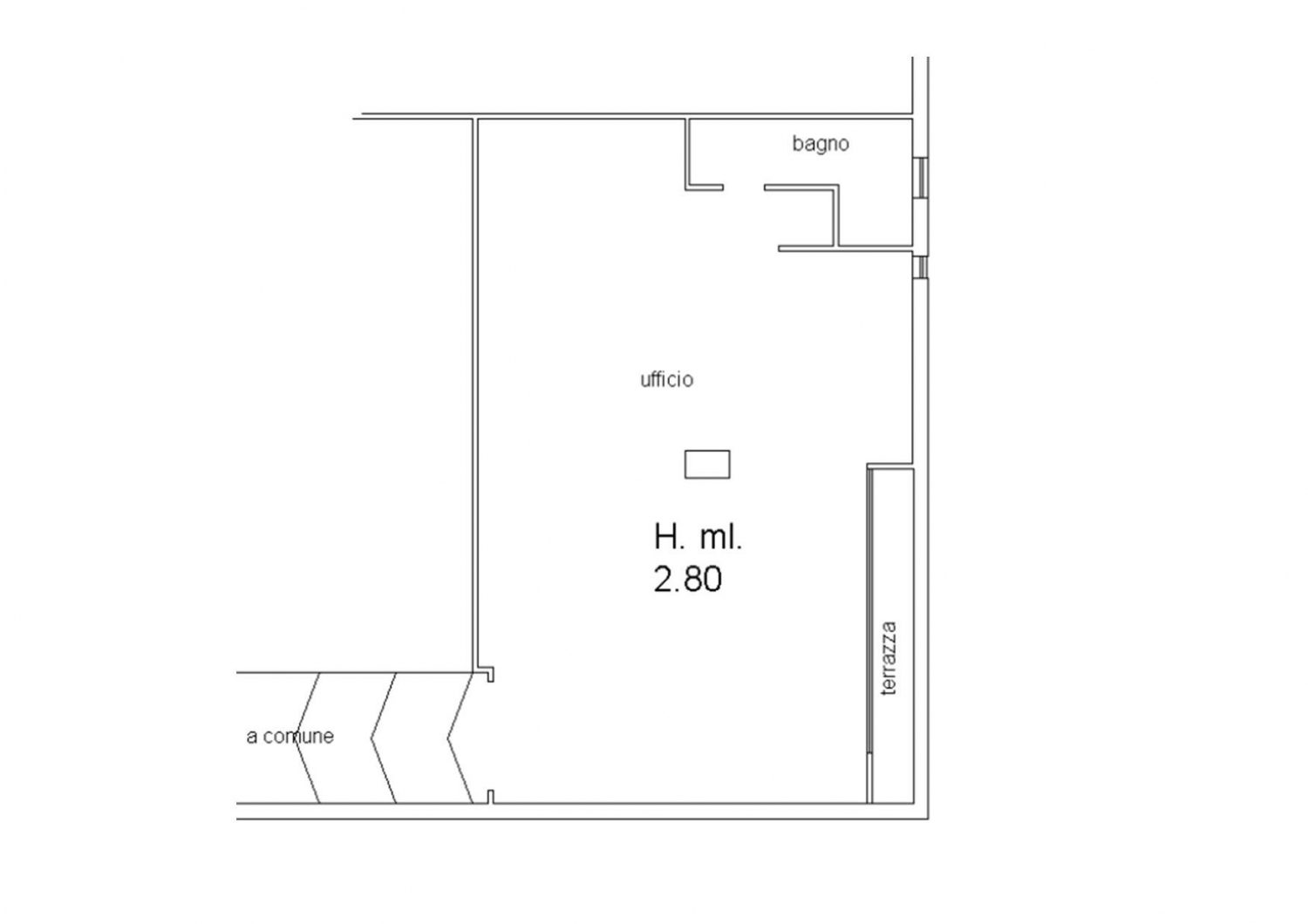
Poggibonsi, a due passi dal centro. Vendesi ufficio in ottime condizioni di conservazione. L'immobile è attualmente composto da n.4 stanze (con pannelli divisori), bagno e terrazza.ulteriori info in agenzia. Classe energetica: g




Caratteristiche immobile:
Codice inserzione: 1747792330
Rif. Annuncio: 3259V
Provincia: Siena
Comune: Poggibonsi
Superficie (Mq) : 115 Mq.
Tipo immobile: Negozi uffici capannoni
Stato immobile: usato
Piano: Ultimo piano
Bagni: 1

Costi:
Prezzo € 110.000


Efficienza energetica:
Classe energetica: G
Riscaldamento: autonomo