0577938558
Descrizione:
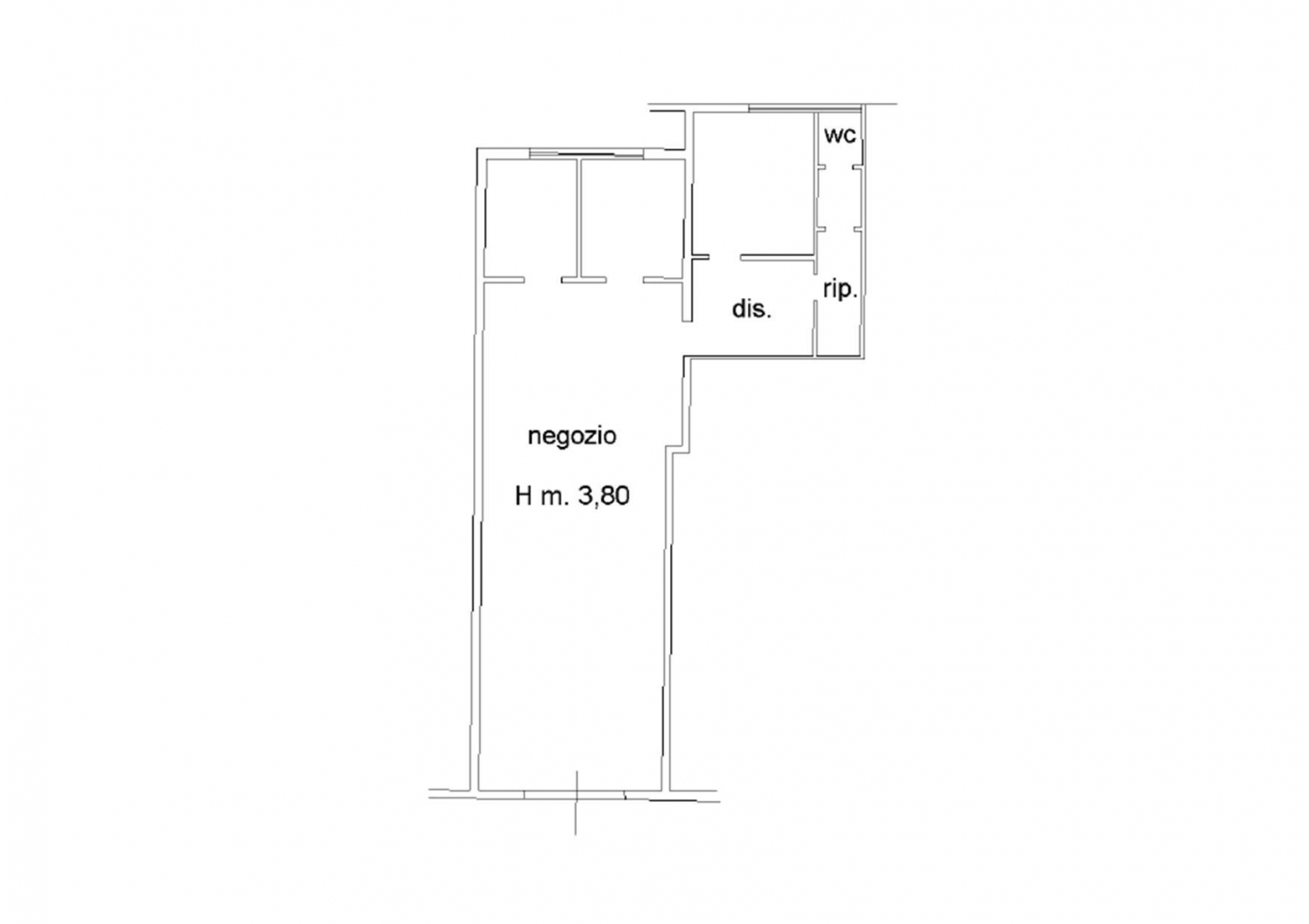
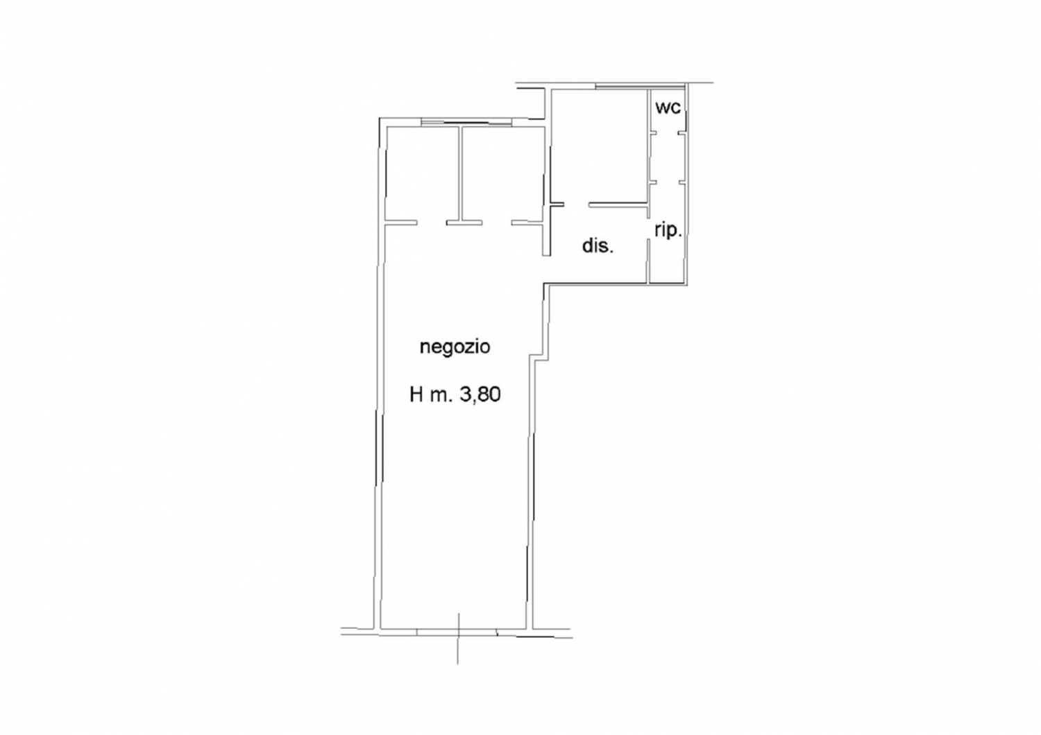
Poggibonsi zona semicentralevendesi locale commerciale fronte strada di circa 129 m.l'immobile, immediatamente disponibile, è composto da:ampio spazio vendita/negozio, tre vani uso ufficio o magazzino, ripostiglio, bagno.soluzione ideale per attività commerciali, studi professionali o magazzini con punto vendita, grazie alla posizione ben visibile e facilmente raggiungibile. Classe energetica: g
| Codice inserzione: | 1764903156 |
| Rif. Annuncio: | 3365V |
| Provincia: | Siena |
| Comune: | Poggibonsi |
| Superficie (Mq) : | 126 Mq. |
| Tipo immobile: | Negozi uffici capannoni |
| Stato immobile: | usato |
| Piano: | Piano terra |
| Bagni: | 1 |
| Prezzo | € 160.000 |
| Classe energetica: | G |