home page > Annunci immobiliari in Italia > Toscana > Siena > Poggibonsi > Negozi uffici capannoni in vendita > Scheda immobile

Negozi uffici capannoni in vendita a Poggibonsi

COMPILA IL MODULO SOTTOSTANTE PER RICEVERE MAGGIORI INFORMAZIONI







Invia la richiesta ad altre agenzie
Accetto il trattamento dei miei dati



Agenzia immobiliare romano

Via montegrappa 127
53036 Poggibonsi (SI)

0577938558

Poggibonsi
Prezzo: € 60.000
G
1
74
Piano terra



Descrizione:
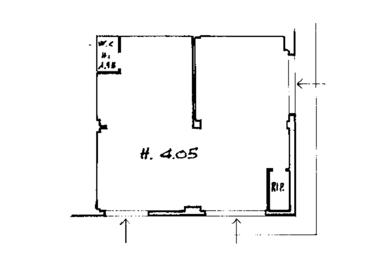
Poggibonsi, zona semicentrale.vendesi locale commerciale con 3 vetrine. L'immobile ha una superficie di circa 74 m suddiviso in 2 vani oltre a servizio.consegna da concordare. Classe energetica: g




Caratteristiche immobile:
Codice inserzione: 1765767252
Rif. Annuncio: 3367V
Provincia: Siena
Comune: Poggibonsi
Superficie (Mq) : 74 Mq.
Tipo immobile: Negozi uffici capannoni
Stato immobile: usato
Piano: Piano terra
Bagni: 1

Costi:
Prezzo € 60.000


Efficienza energetica:
Classe energetica: G