home page > Annunci immobiliari in Italia > Toscana > Siena > Sinalunga > Rustici in vendita > Scheda immobile

Rustici in vendita a Sinalunga

COMPILA IL MODULO SOTTOSTANTE PER RICEVERE MAGGIORI INFORMAZIONI







Invia la richiesta ad altre agenzie
Accetto il trattamento dei miei dati



Immobiliare rappuoli srl

Via trieste 116-118
53048 Sinalunga (SI)

0577678830    Riferimenti: Angelina Rappuoli

Sinalunga
Prezzo: € 650.000
3
1
350
Piano terra



Descrizione:
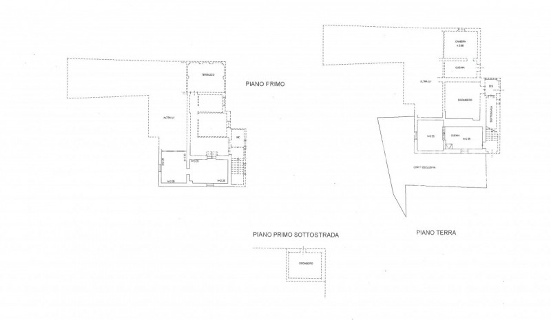
In posizione collinare privilegiata nel cuore della toscana, proponiamo in vendita uno splendido rustico casale di circa 350 mq situato nella suggestiva zona di scrofiano, comune di sinalunga. Questa proprietà unica si compone di due unità immobiliari indipendenti immerse nel verde, perfette sia come abitazione principale che per attività ricettive o agrituristiche.la prima unità è articolata su due livelli: al piano terra troviamo una spaziosa cucina tradizionale con camino e soffitti a voltine in cotto tipiche toscane, sala da pranzo luminosa con ampie finestre affacciate sul giardino alberato privato, disimpegno funzionale, vano sottoscala ideale come dispensa/ripostiglio e locali sgombero versatili; sempre al piano terra sono presenti una seconda cucina attrezzata ed una camera accogliente. Al primo piano si sviluppano un grande soggiorno centrale dal quale si accede all'ampia terrazza panoramica (perfetta per cene all'aperto), corridoio/disimpegno notte ben distribuito, due camere matrimoniali spaziose ed un bagno finestrato.a pochi passi dal corpo principale sorge il secondo edificio caratteristico casale ristrutturato al grezzo in pietra e mattoni composto da ampia zona giorno open space (cucina/soggiorno/pranzo), due camere da letto confortevoli, bagno completo e comodo ripostiglio. La corte esclusiva esterna garantisce privacy assoluta tra pini secolari ed aree relax ombreggiate.completa la proprietà un capannone artigianale/magazzino di circa 90 mq adatto anche a piccole attività produttive o rimessaggio mezzi agricoli. Il tutto circondato da oltre 1 ettaro (13.000 mq) di terreno privato coltivabile ideale per orto biologico oppure vigneto/oliveto , arricchito dalla vista mozzafiato sulle dolci colline senesi.scrofiano è frazione storica del comune di sinalunga famosa per le sue vedute spettacolari sulla valdichiana senese; la posizione strategica permette rapido accesso ai principali servizi cittadini cosù come alle rinomate mete turistiche quali montepulciano, pienza o cortona. L'immobile conserva intatti i materiali originali dell'architettura rurale toscana: travi a vista scure nei soffitti delle zone giorno/notte alternati ai pavimenti antichi in cotto rosso fatto a mano.soluzione perfetta per chi cerca tranquillità senza rinunciare alla comodità dei collegamenti stradali! prezzo trattabile.contattaci subito presso l'agenzia immobiliare rappuoli per ricevere maggiori informazioni o fissare una visita personalizzata.




Caratteristiche immobile:
Codice inserzione: 1754362423
Rif. Annuncio: CL257
Provincia: Siena
Comune: Sinalunga
Zona: Scrofiano  
Superficie (Mq) : 350 Mq.
Tipo immobile: Rustici
Stato immobile: usato
Piano: Piano terra
Camere: 3
Bagni: 1

Costi:
Prezzo € 650.000


Efficienza energetica: