home page > Annunci immobiliari in Italia > Toscana > Siena > Sovicille > appartamenti in vendita > Scheda immobile

Appartamento in vendita a Sovicille

COMPILA IL MODULO SOTTOSTANTE PER RICEVERE MAGGIORI INFORMAZIONI







Invia la richiesta ad altre agenzie
Accetto il trattamento dei miei dati



Studio immobiliare Leone

Via Po 2, piano terra, int.44
53018 Sovicille (SI)

3358117942    3358117942    Riferimenti: dr. Fabio Leone

Sovicille
Prezzo: € 185.000
In definizione
4
2
150
Su due livelli



Descrizione:
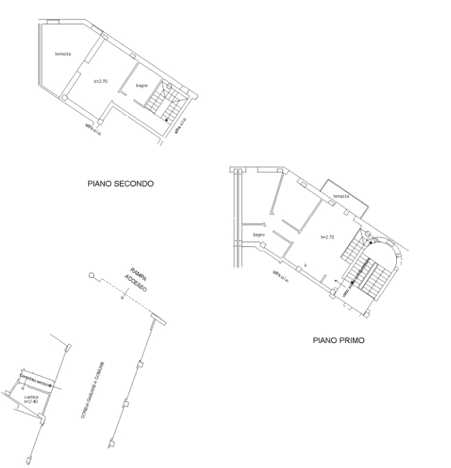
Sovicille (SI Vendesi appartamento di recente costruzione su due livelli - collegati tra loro con scala interna - di circa 110 m² inserito in un piccolo contesto condominiale, in fabbricati di due piani senza ascensore. L'immobile è in perfette condizioni, dispone di infissi termici con ottime rifiniture ed è così composto: primo livello: sala a vista con angolo cottura e affaccio su terrazza - disimpegno - due camere - bagno secondo livello: disimpegno - bagno - camera da letto matrimoniale con affaccio su terrazza panoramica di circa 20 m² completano la proprietà una cantina e un garage di circa 18 m² Riscaldamento autonomo CLASSE ENERGETICA IN CORSO DI DEFINIZIONE Rif: MatSov2025 richiesta: € 185.000




Caratteristiche immobile:
Codice inserzione: 1764673698
Rif. Annuncio: MatSov2025
Provincia: Siena
Comune: Sovicille
Superficie (Mq) : 150 Mq.
Tipo immobile: Appartamento
Stato immobile: recente
Piano: Su due livelli
Camere: 4
Stato al rogito: Libero
Garage: Singolo
Bagni: 2
Terrazze: 2

Costi:
Prezzo € 185.000


Efficienza energetica:
Classe energetica: In fase di definizione
Riscaldamento: autonomo
Tipologia riscaldamento: Metano