Descrizione:
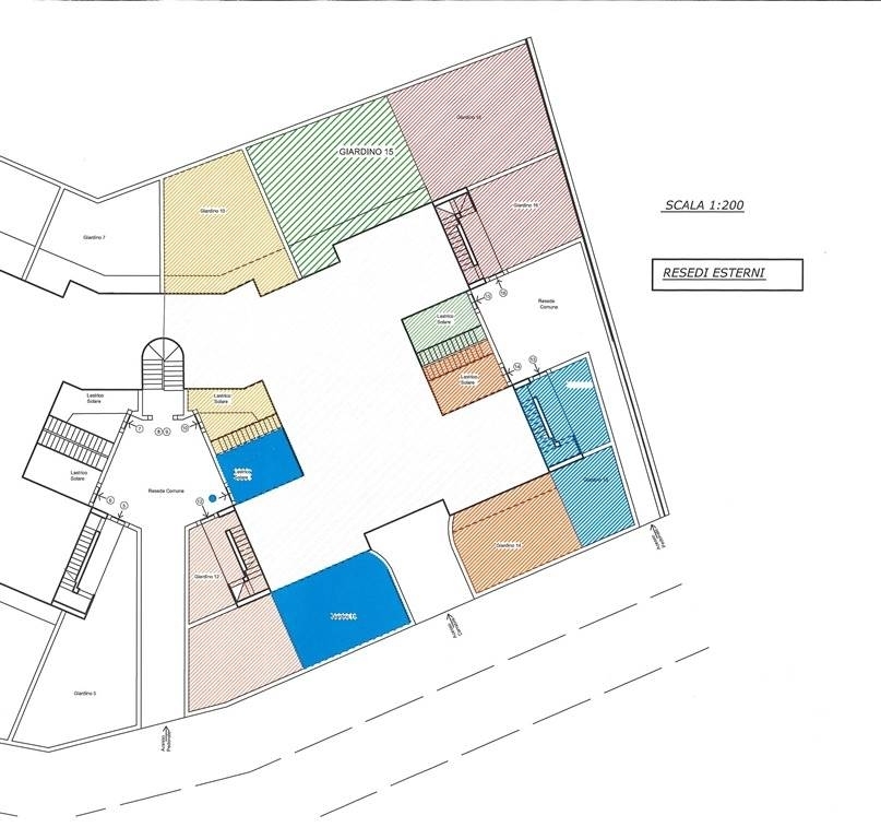
A rosia, recupero di un lotto in costruzione che sarà terminato in pochi mesi, ottimo rapporto qualità/prezzo, spazi esterni comuni e privati, come giardini, terrazze e lastrici solari; ampi garage. Gli appartamenti, con cappotti termici, pompa di calore, riscaldamento a pavimento, fotovoltaico e predisposizione per aria condizionata, saranno in classe energetica a. Possibilità di personalizzare gli interni.appartamento 15: dall'ampio resede a comune, il lastrico solare di 9 mq privato da' indipendenza all'accesso dell'abitazione: ampia zona giorno con area pranzo e cucina a vista con accesso a giardino privato, disimpegno, camera matrimoniale, bagno con finestra. Garage di 13 mq. Classe energetica: a