home page > Annunci immobiliari in Italia > Trentino-Alto Adige > Trento > Rovereto > appartamenti in vendita > Scheda immobile

Appartamento in vendita a Rovereto

COMPILA IL MODULO SOTTOSTANTE PER RICEVERE MAGGIORI INFORMAZIONI







Invia la richiesta ad altre agenzie
Accetto il trattamento dei miei dati



Agenzia immobiliare mazzini

Via mazzini, 71
38068 Rovereto (TN)

0464432905    0464431349    Riferimenti: Giovanni Franchini

Rovereto
Prezzo: € 350.000
2
72



Descrizione:
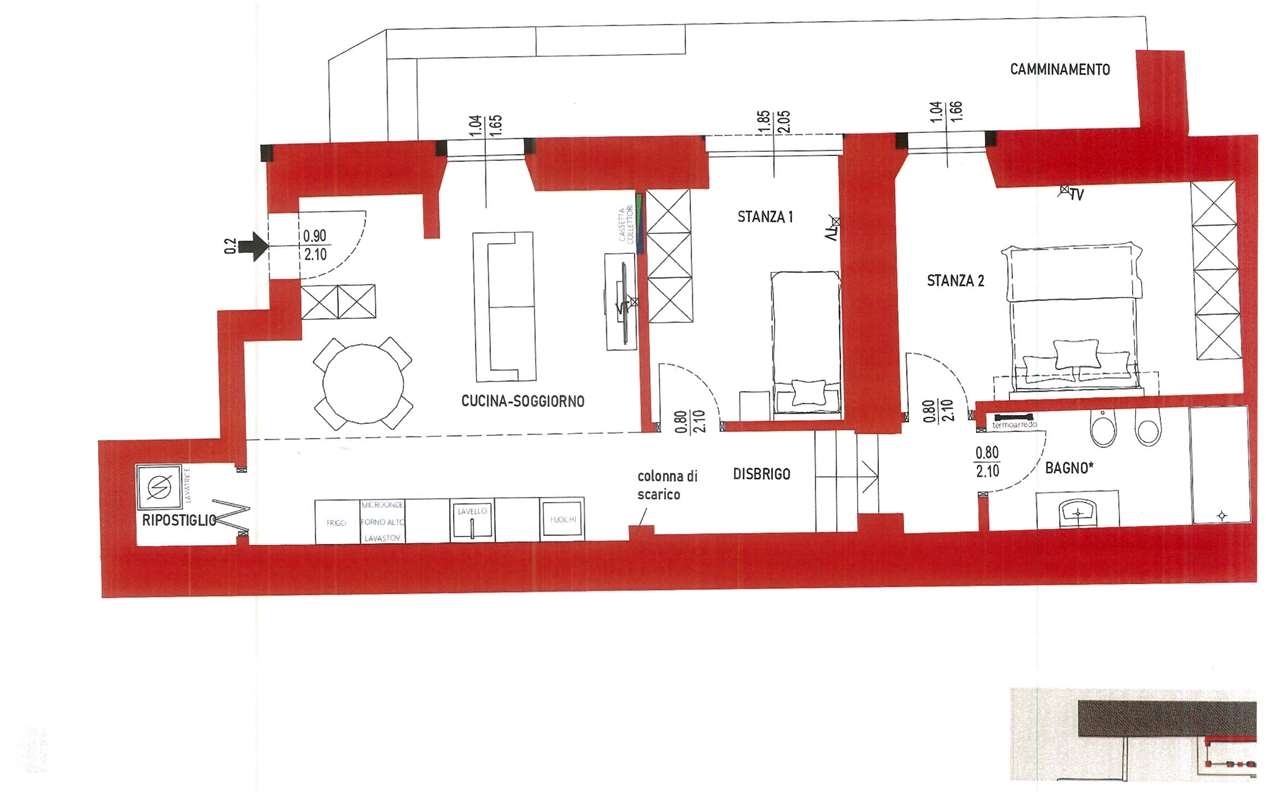
Rovereto semi centro, proponiamo in nuova realizzazione in casa clima a++ appartamento posto al piano terra, ben esposto al sole, composto da: ingresso, soggiorno cottura, due camere, bagno, disbrigo, ripostiglio, e balcone.la casa e' fornita di confort: riscaldamento a pavimento, pannelli solari, cappotto esterno, scelta finiture.consegna aprile 2026classe energetica:




Caratteristiche immobile:
Codice inserzione: 1760483445
Rif. Annuncio: V002841
Provincia: Trento
Comune: Rovereto
Superficie (Mq) : 72 Mq.
Tipo immobile: Appartamento
Camere: 2

Costi:
Prezzo € 350.000


Efficienza energetica: