home page > Annunci immobiliari in Italia > Umbria > Perugia > Magione > appartamenti in vendita > Scheda immobile

Appartamento in vendita a Magione

COMPILA IL MODULO SOTTOSTANTE PER RICEVERE MAGGIORI INFORMAZIONI







Invia la richiesta ad altre agenzie
Accetto il trattamento dei miei dati



Agenzia immobiliare trasimeno casa

Via marconi 13
06065 Passignano sul Trasimeno (PG)

075953589    Riferimenti: Chiara Angelucci

Magione
Prezzo: € 272.000
A4
2
2
121
98
1



Descrizione:
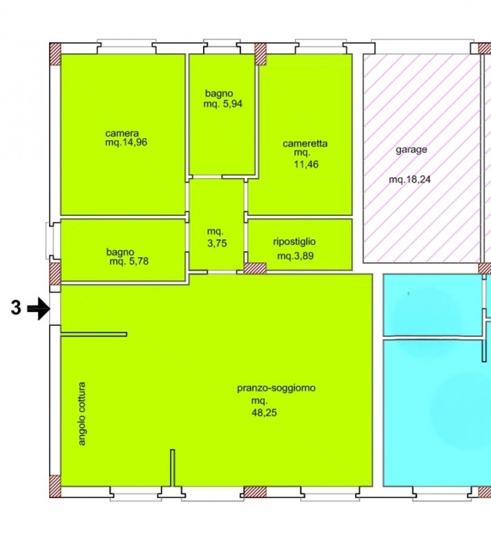
A pochi passi dal centro storico, in una moderna palazzina di quattro piani in fase di costruzione, eleganti appartamenti di varie metrature, progettati per offrire il massimo comfort abitativo ed eccellente prestazione energetica. situato al piano terra, questo elegante appartamento vanta ingresso indipendente e giardino privato con parcheggio.l'abitazione si apre su un comodo disimpegno, luminosa zona giorno con angolo cottura a vista, la zona notte è composta da camera matrimoniale, cameretta, due bagni e comodo ripostiglio per garantire comfort e funzionalità.a completare la proprietà un pratico garage.l'edificio, caratterizzato da finiture di pregio, sarà realizzato in classe energetica a4, con un avanzato impianto fotovoltaico a pompa di calore e un efficiente sistema di riscaldamento e raffrescamento a pavimento, assicurando un'elevata efficienza energetica e un notevole risparmio sui consumi.è possibile personalizzare la distribuzione interna e le finiture, per creare ambienti su misura in base alle proprie esigenze e gusti. La consegna è prevista per gennaio 2026.




Caratteristiche immobile:
Codice inserzione: 1761274530
Rif. Annuncio: A478-3
Provincia: Perugia
Comune: Magione
Superficie (Mq) : 121 Mq.
Tipo immobile: Appartamento
Stato immobile: nuovo
Anno costruzione/ristrutturazione: 2026
Piano: Piano terra
Camere: 2
Garage: Singolo
Posti auto scoperti: 1 posto auto
Bagni: 2

Costi:
Prezzo € 272.000


Efficienza energetica:
Classe energetica: A4
Riscaldamento: autonomo a pavimento