home page > Annunci immobiliari in Italia > Veneto > Belluno > Alleghe > Case e ville indipendenti in vendita > Scheda immobile

Case e ville indipendenti in vendita a Alleghe

COMPILA IL MODULO SOTTOSTANTE PER RICEVERE MAGGIORI INFORMAZIONI







Invia la richiesta ad altre agenzie
Accetto il trattamento dei miei dati



Asteaffari.com

Viale g. E l. Olivi 38
31100 Treviso

04221781118    Riferimenti: Stefano Dalto

Alleghe
Prezzo: € 96.800
F
1
276
2
1



Descrizione:
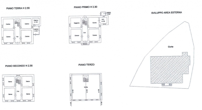
Rif. A.a.96-24vendita all'asta - abitazione unifamiliare su 4 livelli in data 02 dicembre 2025descrizione: trattasi di un fabbricato unifamiliare residenziale che si sviluppa su quattro piani fuori terra, sito nel comune di alleghe (bl); al piano terra quattro camere su un corridoio a cui si accede dalla corte privata, cantina e legnaia; i piani primo e secondo hanno entrambi un corridoio centrale sul quale si affacciano quattro stanze; al piano primo, sopra la cantina, un bagno; sul prospetto sud è presente un piccolo terrazzino con accesso dal corridoio; il piano terzo sottotetto si sviluppa con unico locale adibito a soffitta. Superficie commerciale complessava mq.276.l'immobile viene venduto tramite asta giudiziaria, ed il prezzo indicato si riferisce al prezzo minimo accettato per la partecipazione all'asta.aste-affari fornisce un servizio di assistenza e consulenza tecnica, legale, fiscale e finanziaria su acquisti all'asta e affari immobiliari, al fine di rendere più facile e sicuro l'acquisto di un immobile proveniente dal mercato giudiziario oppure da occasioni presenti sul mercato immobiliare.analisi di fattibilità, tecnica, burocratica, finanziaria, legale, esame problematiche e vincoli, conteggio costi accessori ed occulti, assistenza in tutte le fasi della procedura fino alla consegna delle chiavi dell'immobile.l'acquisto può essere finanziato tramite mutuo, e, ove possibile anche in pre-asta tramite procedura di saldo-stralcio. prezzo minimo base asta : da euro 96.800,00 per info aggiuntive, prenotazione visione, consulenza ed assistenza su asta :studio di consulenza : 'aste-affari.com'info: un debitore ? chiamaci ! abbiamo soluzioni personalizzate!




Caratteristiche immobile:
Codice inserzione: 1761710045
Rif. Annuncio: A.A. 96-24
Provincia: Belluno
Comune: Alleghe
Zona: Alleghe  
Superficie (Mq) : 276 Mq.
Tipo immobile: Case e ville indipendenti
Anno costruzione/ristrutturazione: 1967
Piano: 2
Arredato:
Posti auto scoperti: 1 posto auto
Bagni: 1
Terrazze: 1

Costi:
Prezzo € 96.800


Efficienza energetica:
Classe energetica: F
Riscaldamento: autonomo