home page > Annunci immobiliari in Italia > Veneto > Belluno > Cortina d'Ampezzo > appartamenti in vendita > Scheda immobile

Appartamento in vendita a Cortina d'Ampezzo

COMPILA IL MODULO SOTTOSTANTE PER RICEVERE MAGGIORI INFORMAZIONI







Invia la richiesta ad altre agenzie
Accetto il trattamento dei miei dati



Abitare ad asolo s.r.l. Di marino piccolotto

Viale tiziano 7/a
31011 Asolo (TV)

0423.55722    Riferimenti: ad Asolo Abitare

Cortina d'Ampezzo
Prezzo: € 1.500.000
F
2
2
70
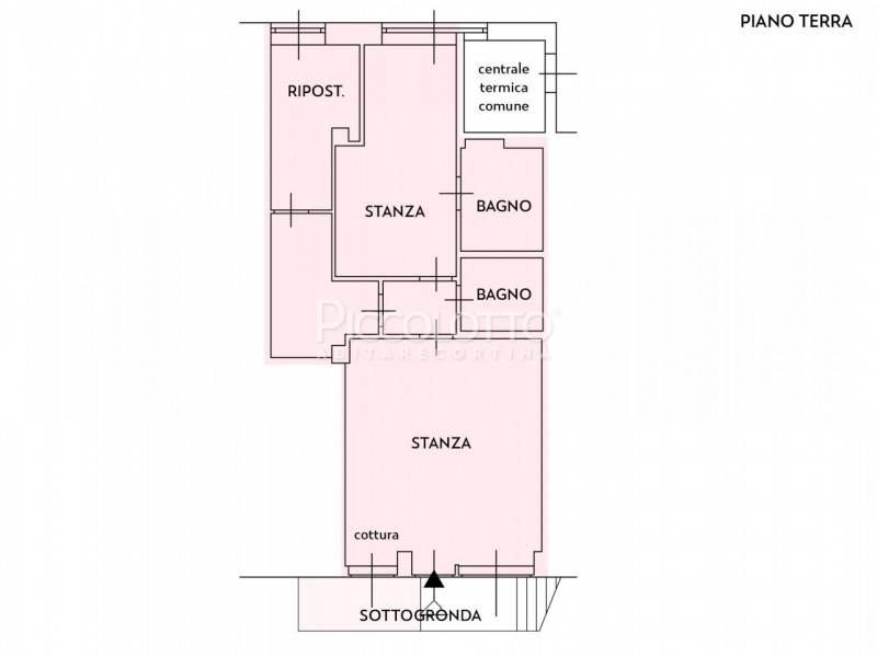
Piano terra
1



Descrizione:
Rif. V5137 - cortina d'ampezzo, appartamento in vendita in privilegiata posizione immersa nel verde, con stupenda vista panoramica. l'abitazione di circa 70 mq, ubicata al piano terra di un'antica casa ampezzana, è stata completamente restaurata.appartamento arredato con gusto, con locali ampi e luminosi cosù suddivisi: ingresso indipendente con bussola esterna, in realizzazione, zona living open space molto accogliente, composta da soggiorno-pranzo-angolo cottura, zona notte con 2 camere (1 matrimoniale con bagno/doccia en suite, seconda camera con 2 letti), bagno con doccia.completa l'abitazione un posto auto esterno. l'appartamento completamente ristrutturato è disponibile ad € 1.500.000 finito chiavi in mano e completo di arredi.al fine di tutelare la privacy, precisiamo che gli indirizzi presenti negli annunci sono puramente indicativi. abitarecortina... Le case più belle! piazza pittori fratelli ghedina, 17 32043 cortina d'ampezzo (bl) tel. +




Caratteristiche immobile:
Codice inserzione: 1757471742
Rif. Annuncio: V5137
Provincia: Belluno
Comune: Cortina d'Ampezzo
Superficie (Mq) : 70 Mq.
Tipo immobile: Appartamento
Stato immobile: usato
Anno costruzione/ristrutturazione: 2025
Piano: Piano terra
Camere: 2
Arredato:
Posti auto scoperti: 1 posto auto
Bagni: 2

Costi:
Prezzo € 1.500.000


Efficienza energetica:
Classe energetica: F
Indice di prestazione energetica (EPgl): 241.3 kWh/mq annui
Riscaldamento: centralizzato