home page > Annunci immobiliari in Italia > Veneto > Belluno > Cortina d'Ampezzo > Negozi uffici capannoni in vendita > Scheda immobile

Negozi uffici capannoni in vendita a Cortina d'Ampezzo

COMPILA IL MODULO SOTTOSTANTE PER RICEVERE MAGGIORI INFORMAZIONI







Invia la richiesta ad altre agenzie
Accetto il trattamento dei miei dati



Asteaffari.com

Viale g. E l. Olivi 38
31100 Treviso

04221781118    Riferimenti: Stefano Dalto

Cortina d'Ampezzo
Prezzo: € 780.000
E
1
350
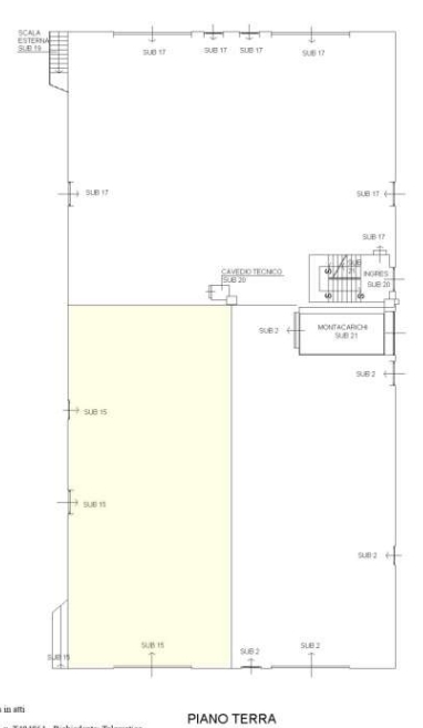
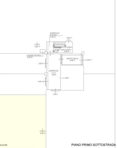
Piano terra
1



Descrizione:
Rif. A.a.62-23vendita all'asta - laboratorio artigianale in data 13 gennaio 2026descrizione immobili : trattasi di un'unità immobiliare facente parte di un fabbricato a più unità produttive sito nel comune di cortina d'ampezzo (bl) località pian da lago, e precisamente di un opificio al piano sotto strada e terra con accessori, di superficie commerciale complessiva mq.350.l'immobile viene venduto tramite asta giudiziaria, ed il prezzo indicato si riferisce al prezzo minimo accettato per la partecipazione all'asta.aste-affari fornisce un servizio di assistenza e consulenza tecnica, legale, fiscale e finanziaria su acquisti all'asta e affari immobiliari, al fine di rendere più facile e sicuro l'acquisto di un immobile proveniente dal mercato giudiziario oppure da occasioni presenti sul mercato immobiliare.analisi di fattibilità, tecnica, burocratica, finanziaria, legale, esame problematiche e vincoli, conteggio costi accessori ed occulti, assistenza in tutte le fasi della procedura fino alla consegna delle chiavi dell'immobile.l'acquisto può essere finanziato tramite mutuo, e, ove possibile anche in pre-asta tramite procedura di saldo-stralcio.prezzo minimo base asta : da euro 780.000,00per info aggiuntive, prenotazione visione, consulenza ed assistenza su asta :studio di consulenza : 'aste-affari.com'info: un debitore ? chiamaci ! abbiamo soluzioni personalizzate anche per te.




Caratteristiche immobile:
Codice inserzione: 1763610761
Rif. Annuncio: A.A.62-23
Provincia: Belluno
Comune: Cortina d'Ampezzo
Superficie (Mq) : 350 Mq.
Tipo immobile: Negozi uffici capannoni
Stato immobile: usato
Anno costruzione/ristrutturazione: 2008
Piano: Piano terra
Arredato:
Posti auto scoperti: 1 posto auto
Tipologia giardino : Condominiale
Bagni: 1

Costi:
Prezzo € 780.000


Efficienza energetica:
Classe energetica: E
Riscaldamento: autonomo