home page > Annunci immobiliari in Italia > Veneto > Padova > Abano Terme > appartamenti in vendita > Scheda immobile

Appartamento in vendita a Abano Terme

COMPILA IL MODULO SOTTOSTANTE PER RICEVERE MAGGIORI INFORMAZIONI







Invia la richiesta ad altre agenzie
Accetto il trattamento dei miei dati



My home selva s.r.l.

Via padova 12/e
35030 Selvazzano Dentro (PD)

0498686040    Riferimenti: MYHOMEGROUP Selvazzano

Abano Terme
Prezzo: € 342.000
A4
3
2
160
1
1



Descrizione:
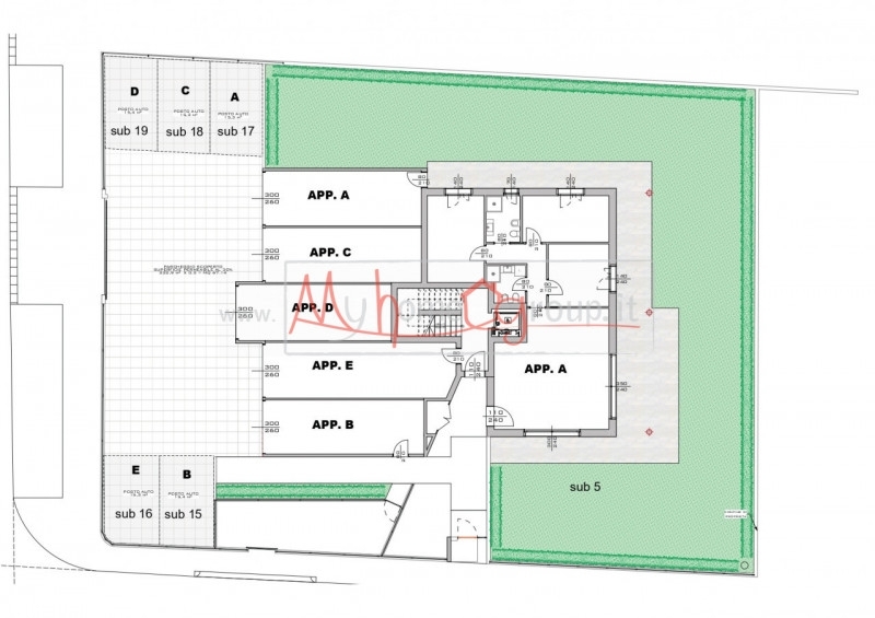
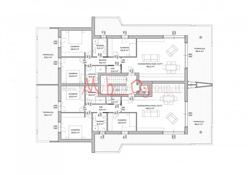
Abano terme - (rif.a417-s) - in prossimità del centro di abano terme, quartiere signorile e ben servito, nuovo appartamento pronto a abitare in piccolo condominio con ascensore, l'abitazione si sviluppa tutta su un unico livello, dove troviamo un'elegante terrazza che circonda l'appartamento su 2 lati, con accesso dalla zona giorno e da una camera, ideale per vivere a pieno i confort dell'abitazione nei mesi più caldi. Dall'ingresso si accede direttamente all' ampio soggiorno di 45mq. Con cucina a vista serviti da 2 ampie vetrate a tutta altezza che donano luminosità. La zona notte è composta da 3 camere da letto due delle quali servite da ulteriore terrazzo di 23mq e 2 bagni. Molto utile inoltre, un comodo ripostiglio con attacco lavatrice.a concludere troviamo il garage doppio al piano terra e un posto auto esterno.questa nuovissima soluzione è un occasione imperdibile nel mercato immobiliare di oggi essendo realizzata tutta su un unico livello e ciò la rende rara e particolare. prezzo euro 342.000,00 detrazione bonus casa a favore dell'acquirente fino ad euro 40.000,00 chiamaci per avere ulteriori informazioni o per fissare un appuntamento: agenzia immobiliare myhomegroup - via padova 12/e, 35030 selvazzano dentro - pd - tel vendere per comprare? nessun problema, ci pensiamo noi!vuoi acquistare la tua nuova casa ma hai bisogno di vendere prima? my home group ti offre un servizio completo per la vendita del tuo immobile, aiutandoti a ottenere il massimo valore in tempi rapidi.valutazione gratuita e senza impegnoscopri quanto vale la tua casa!prenota subito una valutazione gratuita con i nostri esperti.https:// una valutazioneaffidati a noi per una gestione semplice e professionale della vendita del tuo immobile!l'agenzia myhomegroup di selvazzano dentro, copre le zone di tencarola, caselle, san domenico, feriole, abano terme, montegrotto, saccolongo, teolo, torreglia, cervarese santa croce, mestrino, rubano, padova.




Caratteristiche immobile:
Codice inserzione: 1746412608
Rif. Annuncio: A417-S
Provincia: Padova
Comune: Abano Terme
Superficie (Mq) : 160 Mq.
Tipo immobile: Appartamento
Stato immobile: nuovo
Anno costruzione/ristrutturazione: 2025
Piano: 1
Camere: 3
Garage: Doppio
Posti auto scoperti: 1 posto auto
Bagni: 2
Terrazze: 2

Costi:
Prezzo € 342.000


Efficienza energetica:
Classe energetica: A4
Indice di prestazione energetica (EPgl): 3.51 kWh/mq annui
Riscaldamento: autonomo a pavimento