home page > Annunci immobiliari in Italia > Veneto > Padova > Abano Terme > Case e ville indipendenti in vendita > Scheda immobile

Case e ville indipendenti in vendita a Abano Terme

COMPILA IL MODULO SOTTOSTANTE PER RICEVERE MAGGIORI INFORMAZIONI







Invia la richiesta ad altre agenzie
Accetto il trattamento dei miei dati



Sz affari immobiliari srl unipersonale

Via piovese 251
35121 Padova

049750812    Riferimenti: Simone Zancanaro

Abano Terme
Prezzo: € 210.000
F
4
1
120
Ultimo piano



Descrizione:
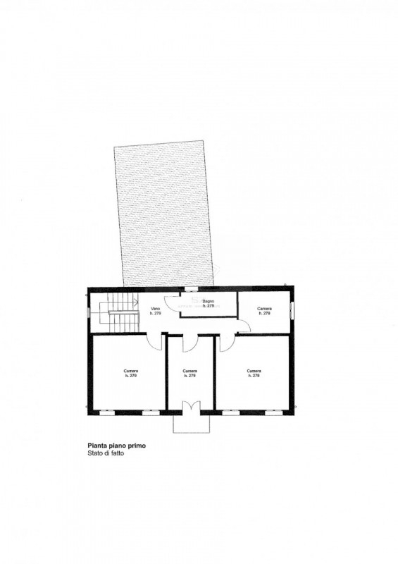
Abano terme casa singola da ristrutturare con progetto approvato.proponiamo casa singola da ristrutturare, inserita in una zona residenziale nella quale i colli euganei fanno da cornice, strategicamente individuata fra il centro di abano e montegrotto, in un quartiere ben servito.ad oggi la casa si presenta cosi :piano terra un ingresso, soggiorno, zona pranzo e cucina abitabile, 2 ripostigli; piano 1 troviamo 4 camere e un bagno.grazie ad un progetto di restyling e di efficientamento energetico si potrebbe portare l'edificio ad una classe energetica nzeb (edificio quasi passivo).la proprietà ha già un'autorizzazione rilasciata dal comune di pertinenza per ridistribuire gli spazi interni e l'abitazione può diventare:al piano terra una grande zona giorno di 50 mq con ampie vetrate dalla quale si può accedere al giardino, comodo ripostiglio, bagno-lavanderia e grande portico comodo anche per ospitare 2 auto; al piano primo 3 camere, spaziosa cabina armadio, bagno, disimpegno e grande terrazzo.certificazione energetica 'f' epgl, nren 274,50euro 210.000rif. 1778




Caratteristiche immobile:
Codice inserzione: 1761623915
Rif. Annuncio: 1778
Provincia: Padova
Comune: Abano Terme
Superficie (Mq) : 120 Mq.
Tipo immobile: Case e ville indipendenti
Stato immobile: usato da riattare
Anno costruzione/ristrutturazione: 1957
Piano: Ultimo piano
Camere: 4
Bagni: 1

Costi:
Prezzo € 210.000


Efficienza energetica:
Classe energetica: F
Indice di prestazione energetica (EPgl): 274.5 kWh/mq annui
Riscaldamento: autonomo