home page > Annunci immobiliari in Italia > Veneto > Padova > Albignasego > appartamenti in vendita > Scheda immobile

Appartamento in vendita a Albignasego

COMPILA IL MODULO SOTTOSTANTE PER RICEVERE MAGGIORI INFORMAZIONI







Invia la richiesta ad altre agenzie
Accetto il trattamento dei miei dati



Sz affari immobiliari srl unipersonale

Via piovese 251
35121 Padova

049750812    Riferimenti: Simone Zancanaro

Albignasego
Prezzo: € 340.000
A4
3
2
120
1



Descrizione:
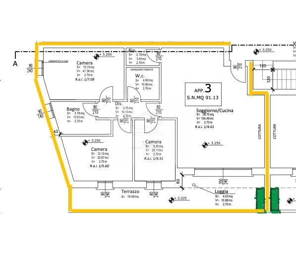
Albignasego san lorenzonel cuore della nuova zona residenziale di san lorenzo, in un contesto in forte sviluppo destinato a diventare il nuovo centro di albignasego, proponiamo appartamento in fase di realizzo, a pochi passi da tutti i servizi essenziali.l'abitazione, inserita in una palazzina elegante e servita da ascensore, è progettata per offrire il massimo comfort abitativo e un elevato risparmio energetico grazie a tecnologie di ultima generazione.tra le principali dotazioni:impianto fotovoltaico indipendente da 3 kwventilazione meccanica controllata (vmc)riscaldamento a pavimento con pompa di caloreimpianto di aria condizionataavvolgibili motorizzatil'appartamento, situato al primo piano con esposizione sud-ovest, si compone di:ampia zona giorno con cucina a vistatre camere da lettodue bagniripostiglioterrazzo abitabilecompleta la proprietà un garage al piano terra.classe 'a4' euro 340.000rif. 1825




Caratteristiche immobile:
Codice inserzione: 1776653238
Rif. Annuncio: 1825
Provincia: Padova
Comune: Albignasego
Superficie (Mq) : 120 Mq.
Tipo immobile: Appartamento
Stato immobile: usato
Anno costruzione/ristrutturazione: 2026
Piano: 1
Camere: 3
Garage: Singolo
Bagni: 2
Terrazze: 1

Costi:
Prezzo € 340.000


Efficienza energetica:
Classe energetica: A4
Riscaldamento: autonomo a pavimento