home page > Annunci immobiliari in Italia > Veneto > Padova > Albignasego > Attici in vendita > Scheda immobile

Attici in vendita a Albignasego

COMPILA IL MODULO SOTTOSTANTE PER RICEVERE MAGGIORI INFORMAZIONI







Invia la richiesta ad altre agenzie
Accetto il trattamento dei miei dati



Sz affari immobiliari srl unipersonale

Via piovese 251
35121 Padova

049750812    Riferimenti: Simone Zancanaro

Albignasego
Prezzo: € 273.000
A4
2
2
95
2
1



Descrizione:
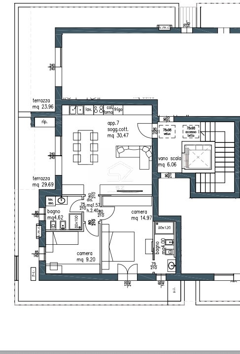
San giacomo - albignasegoin fase di realizzo, palazzina che ospita poche unità abitative, situata in ottima posizione dove si possono raggiungere facilmente tutti i servizi offerti dalla zona.fabbricato concepito con tecniche rivolte al risparmio energetico e al comfort interno, efficienza termica in estate e inverno, qualità dell'abitare attraverso le murature portanti realizzate con blocchi cassero in legno-cemento, il riscaldamento a pavimento, impianto di aria condizionata canalizzata e un impianto fotovoltaico dedicato per ogni unità.ogni unità avrà a disposizione un garage al piano terra con accesso diretto nel vano scala e un posto auto dedicato.proponiamo appartamento al secondo ed ultimo piano servito da ascensore; internamente composto da soggiorno con angolo cottura, 2 camere, 2 bagni finestrati, terrazzo abitabile.possibilità di completa personalizzazione interna.classe energetica 'a4' euro 273.000rif. 1495-asg7




Caratteristiche immobile:
Codice inserzione: 1763524425
Rif. Annuncio: 1495-ASG7
Provincia: Padova
Comune: Albignasego
Zona: San Giacomo  
Superficie (Mq) : 95 Mq.
Tipo immobile: Attici
Stato immobile: nuovo
Anno costruzione/ristrutturazione: 2026
Piano: 2
Camere: 2
Garage: Singolo
Posti auto scoperti: 1 posto auto
Bagni: 2
Terrazze: 1

Costi:
Prezzo € 273.000


Efficienza energetica:
Classe energetica: A4