home page > Annunci immobiliari in Italia > Veneto > Padova > Albignasego > Case e ville indipendenti in vendita > Scheda immobile

Case e ville indipendenti in vendita a Albignasego

COMPILA IL MODULO SOTTOSTANTE PER RICEVERE MAGGIORI INFORMAZIONI







Invia la richiesta ad altre agenzie
Accetto il trattamento dei miei dati



Immobiliare obizzi

Via roma 121
35020 Albignasego (PD)

0498627730    +39 049 8627312    Riferimenti: Immobiliare Obizzi

Albignasego
Prezzo: € 530.000
A4
3
3
170
2
1



Descrizione:
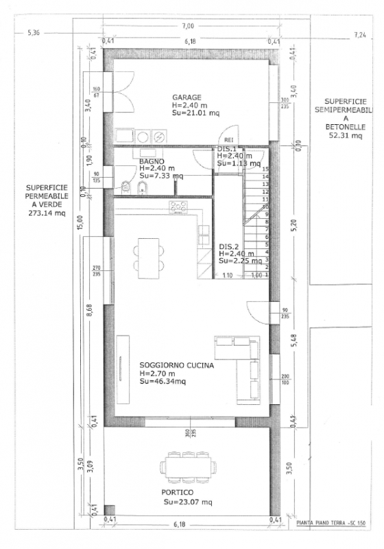
Albignasego zona carpanedo: vendesi casa singola in costruzione studiata per offrire il massimo comfort con finiture curate nei dettagli, personalizzabili, in classe energetica 'a4'. La soluzione, si compone al piano terra da: soggiorno con angolo cottura da 47 mq con accesso diretto al giardino mediante vetrate scorrevoli ed a un portico di mq. 23, bagno e garage collegato completo di riscaldamento a pavimento. Salendo al primo piano si accede alla zona notte dove troviamo: tre camere di cui una padronale con bagno privato, terzo bagno, disimpegno notte con armadio a muro ed ampio terrazzo di mq.34. L'elevato standard qualitativo nella progettazione architettonica garantisce ottime prestazioni energetiche sia nella stagione invernale che in quella estiva grazie ad un involucro costituito da blocchi cassero in legno cemento. L'immobile è dotato di: infissi basso emissivo in pvc con gas argon, impianto di riscaldamento in pompa di calore dotata di accumulo, impianto di climatizzazione, impianto fotovoltaico e ventilazione meccanica controllata per il ricircolo dell'aria. prezzo richiesto euro 530.000




Caratteristiche immobile:
Codice inserzione: 1721910575
Rif. Annuncio: AN2086VR
Provincia: Padova
Comune: Albignasego
Zona: Carpanedo  
Superficie (Mq) : 170 Mq.
Tipo immobile: Case e ville indipendenti
Stato immobile: nuovo
Anno costruzione/ristrutturazione: 2024
Piano: 2
Camere: 3
Garage: Singolo
Posti auto scoperti: 1 posto auto
Bagni: 3
Terrazze: 1

Costi:
Prezzo € 530.000


Efficienza energetica:
Classe energetica: A4
Riscaldamento: autonomo a pavimento