home page > Annunci immobiliari in Italia > Veneto > Padova > Albignasego > Case e ville indipendenti in vendita > Scheda immobile

Case e ville indipendenti in vendita a Albignasego

COMPILA IL MODULO SOTTOSTANTE PER RICEVERE MAGGIORI INFORMAZIONI







Invia la richiesta ad altre agenzie
Accetto il trattamento dei miei dati



Il broker immobiliare

Via roma 244/a
35020 Albignasego (PD)

3398168925    3398168925

Albignasego
Prezzo: € 330.000
3
2
110
Ultimo piano



Descrizione:
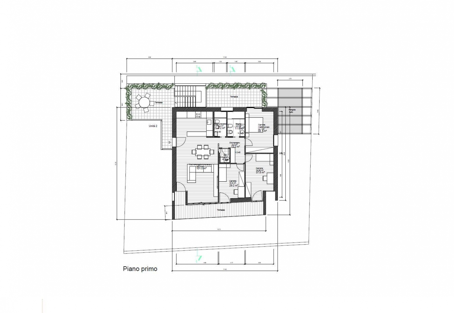
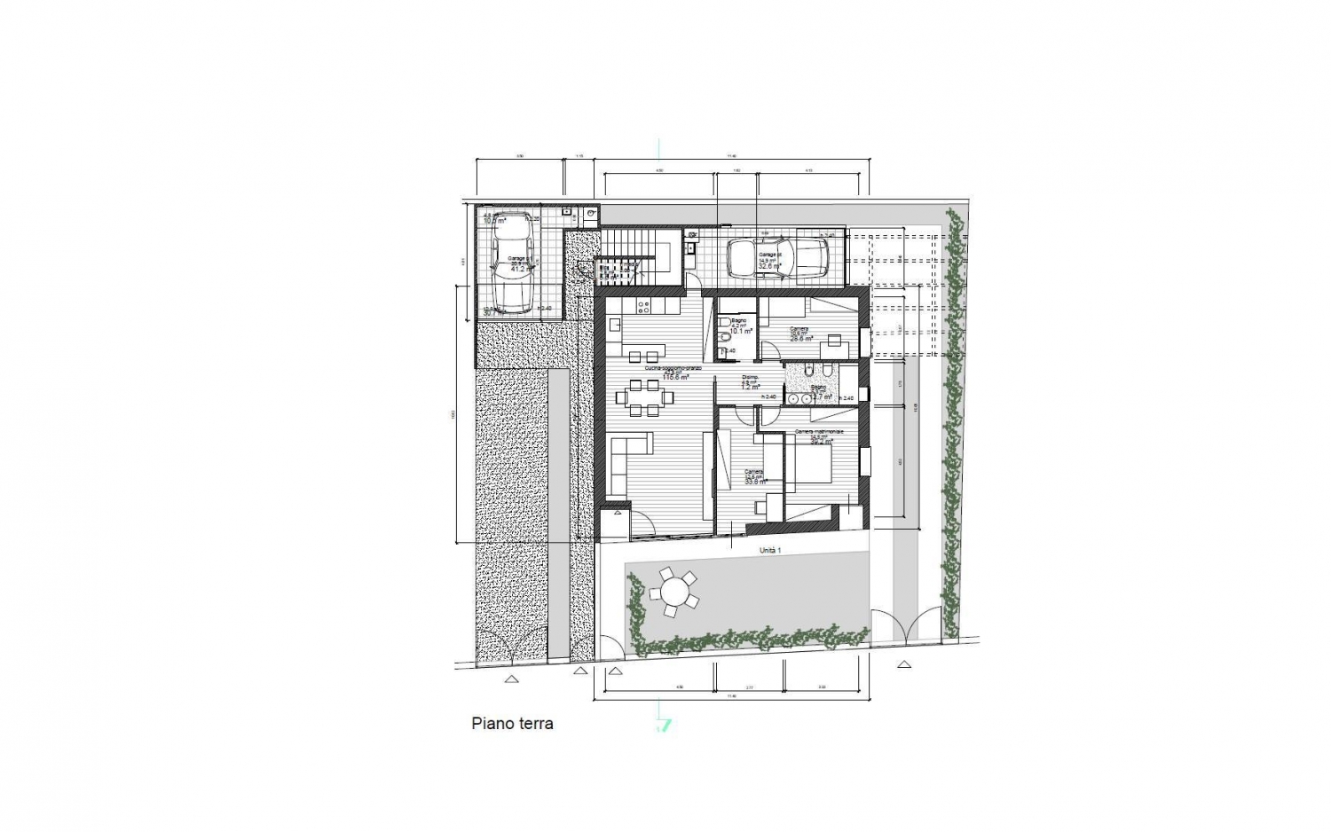
In vendita a albignasego, proponiamo un'appartamento al piano terra in bifamiliare di mq 110 , caratterizzata da un design moderno e funzionale. Questa abitazione, di nuova costruzione, è classificata in classe energetica a4, garantendo un elevato risparmio energetico e comfort abitativo. l'immobile è composta da 4 vani, tra cui 3 camere da letto luminose, ideali per famiglie. Gli ambienti sono ben distribuiti e comprendono una cucina a vista abitabile, perfetta per momenti di convivialità e 2 bagni moderni e ben rifiniti. la proprietà si sviluppa su un livello, offrendo la possibilità di personalizzare gli interni secondo il proprio gusto. Il riscaldamento è autonomo e l'immobile è dotato di condizionatore, assicurando un clima ideale in ogni stagione.all'esterno, dispone di un giardino di 80 mq, perfetto per trascorrere piacevoli momenti all'aria aperta, organizzare barbecue o semplicemente rilassarsi in un ambiente verde e tranquillo. questa è un'opportunità imperdibile per chi cerca una soluzione abitativa moderna, confortevole e situata in una zona residenziale di albignasego. Non perdere l'occasione di visitare questa meravigliosa villa bifamiliare, contattaci per maggiori informazioni e per prenotare una visita! classe energetica: a4




Caratteristiche immobile:
Codice inserzione: 1760493155
Rif. Annuncio: CB1023X-
Provincia: Padova
Comune: Albignasego
Superficie (Mq) : 110 Mq.
Tipo immobile: Case e ville indipendenti
Stato immobile: nuovo
Piano: Ultimo piano
Camere: 3
Bagni: 2

Costi:
Prezzo € 330.000


Efficienza energetica:
Riscaldamento: autonomo