home page > Annunci immobiliari in Italia > Veneto > Padova > Albignasego > Case e ville indipendenti in vendita > Scheda immobile

Case e ville indipendenti in vendita a Albignasego

COMPILA IL MODULO SOTTOSTANTE PER RICEVERE MAGGIORI INFORMAZIONI







Invia la richiesta ad altre agenzie
Accetto il trattamento dei miei dati



Immobiliare obizzi

Via roma 121
35020 Albignasego (PD)

0498627730    +39 049 8627312    Riferimenti: Immobiliare Obizzi

Albignasego
Prezzo: € 310.000
E
3
2
220
1



Descrizione:
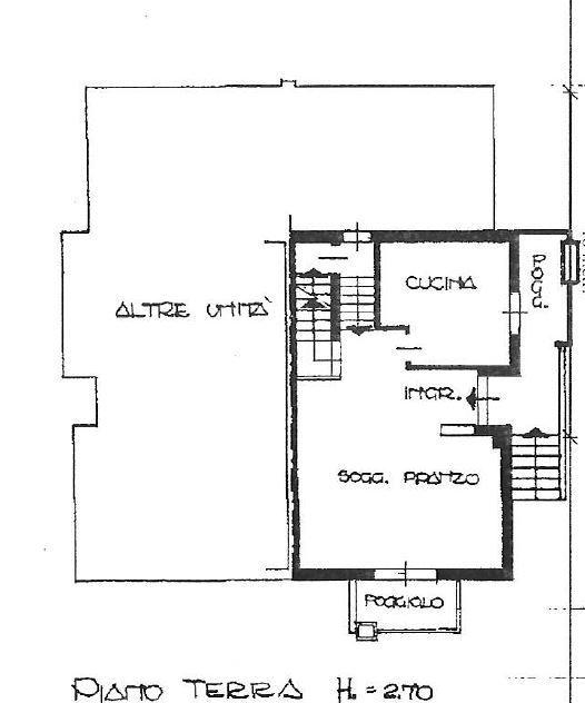
Albignasego centro: in esclusiva vendesi porzione di bifamiliare posizionata in un piccolo residence e situata nel centro del paese con accesso immediato ai negozi, ai servizi essenziali come scuole e trasporti pubblici. Con una superfice di mq. 220 questa proprietà è ideale per famiglie alla ricerca di spazi ampi, confortevoli e ben distribuiti.gli spazi interni sono distribuiti su più livelli con ingresso, soggiorno, cucina separata abitabile entrambe con poggiolo e affaccio sul giardino al piano rialzato; camera matrimoniale con bagno e poggiolo, seconda camera matrimoniale, camera doppia con poggiolo, secondo bagno e ripostiglio al piano primo. Taverna di mq.48 e ripostiglio nel sottoscala al piano seminterrato. Garage doppio al piano terra, posti auto esterni e giardino privato.gli interni sono finiti con materiali di qualità offrendo eleganza e funzionalità.pannelli solari per l'acqua sanitaria, pompeiana esterna, aria condizionata, pittura pareti esterne recente con cappotto lato nord e tende da sole.viene venduta parzialmente arredataesposizione sud-est-nordclasse energetica eprezzo richiesto euro 310.000 trattabile




Caratteristiche immobile:
Codice inserzione: 1776393572
Rif. Annuncio: AP2262VR
Provincia: Padova
Comune: Albignasego
Superficie (Mq) : 220 Mq.
Tipo immobile: Case e ville indipendenti
Stato immobile: usato
Anno costruzione/ristrutturazione: 1989
Camere: 3
Garage: Singolo
Posti auto scoperti: 1 posto auto
Bagni: 2 + lavanderia

Costi:
Prezzo € 310.000


Efficienza energetica:
Classe energetica: E
Riscaldamento: autonomo