home page > Annunci immobiliari in Italia > Veneto > Padova > Albignasego > Negozi uffici capannoni in vendita > Scheda immobile

Negozi uffici capannoni in vendita a Albignasego

COMPILA IL MODULO SOTTOSTANTE PER RICEVERE MAGGIORI INFORMAZIONI







Invia la richiesta ad altre agenzie
Accetto il trattamento dei miei dati



Obiettivo casa sas di colombin fabrizio & c.

Via gramsci 127/a
35010 Cadoneghe (PD)

049701573    3351380345 - 3664433441    Riferimenti: Fabrizio Colombin

Albignasego
Prezzo: € 150.000
A4
70
Piano terra



Descrizione:
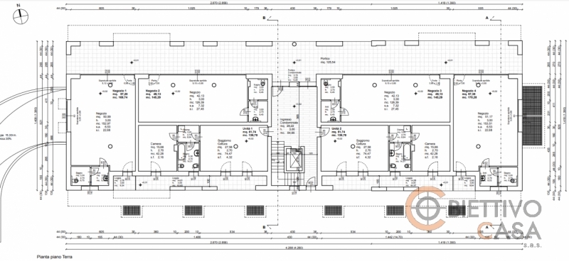
Albignasego, mandriola, rif ngm01. Scopri un'opportunità unica nel cuore di mandriola, ad albignasego! proponiamo in vendita un elegante negozio al piano terra, situato alle spalle della chiesa di mandriola. Questo immobile è parte di una nuova lottizzazione che si affaccia su una piazza pubblica nuova.il negozio offre un'area interna di 57 mq, completa di antibagno e bagno privato. La sua esposizione su tre lati garantisce luminosità naturale durante tutto il giorno: vetrina sul lato nord protetta da portico, grande finestra ad ovest che illumina gli interni e accesso secondario a sud con scoperto privato ideale per allestire uno spazio esterno accogliente (questo dettaglio può fare la differenza).la consegna dell'immobile avverrà entro 2-3 mesi, permettendo cosù all'acquirente di personalizzare le finiture secondo i propri gusti ed esigenze. Situato in una zona strategica, il negozio beneficia del passaggio pedonale generato dalla vicinanza alla chiesa e dai servizi circostanti; ottimo anche per vicinanza alla fermata del bus e alla strada battaglia.euro 150.000,00 disponibile allo stesso prezzo unita' simile esposta a nord, est sud.classe a4rif. Ngm01-04per maggiori informazioni , tutte le novità in zona, consigli e curiosità sul mondo immobiliare e non solo, seguiteci su:facebook: obiettivo casa sas di colombin fabrizio & c.instagram: obiettivo_casa_cadoneghele informazioni e i dati contenuti nel presente annuncio non costituiscono elemento contrattuale.nel rispetto della legge sulla privacy, l'indirizzo ed il puntatore riportato nell'annuncio e nella mappa sono indicativi e non corrispondono all'indirizzo esatto in cui si trova l'immobile.vi invitiamo a contattarci per fornirvi maggiori informazioni sull'immobile.




Caratteristiche immobile:
Codice inserzione: 1768362949
Rif. Annuncio: NGM01
Provincia: Padova
Comune: Albignasego
Zona: Mandriola  
Superficie (Mq) : 70 Mq.
Tipo immobile: Negozi uffici capannoni
Stato immobile: nuovo
Anno costruzione/ristrutturazione: 2025
Piano: Piano terra

Costi:
Prezzo € 150.000


Efficienza energetica:
Classe energetica: A4