home page > Annunci immobiliari in Italia > Veneto > Padova > Baone > Case e ville a schiera in vendita > Scheda immobile

Case e ville a schiera in vendita a Baone

COMPILA IL MODULO SOTTOSTANTE PER RICEVERE MAGGIORI INFORMAZIONI







Invia la richiesta ad altre agenzie
Accetto il trattamento dei miei dati



Immobiliare principe umberto

Via principe umberto 54/b
35042 Este (PD)

042950199    Riferimenti: Monica Cogo

Baone
Prezzo: € 382.000
A1
3
180
1
1



Descrizione:
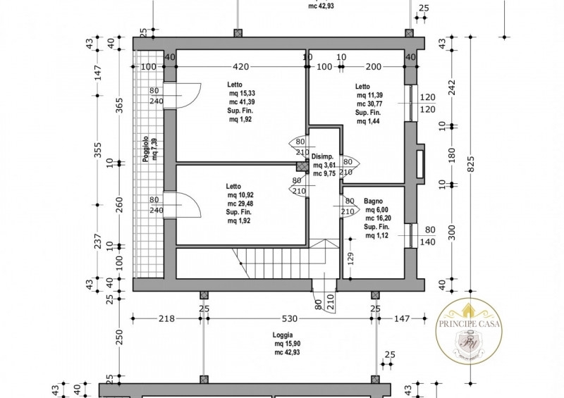
Rif. S389 - proponiamo in vendita, in zona residenziale di baone quindi comoda ai servizi ed alle vie di comunicazione, porzione centrale di casa a schiera di nuova realizzazione con divisione dal garage e sviluppata su due livellila casa garantisce una suddivisione degli spazi funzionale, con un'ampia zona giorno in comoda soluzione open-space, bagno, ripostiglio, garage. Il primo piano è suddiviso in camera da letto matrimoniale, camera da letto doppia, camera singola, bagno. La casa inoltre comprende una terrazza a tutta facciata a servizio di due camere e una spaziosa terrazza abitabile. Il lotto di terreno è generoso ed offre la possibilità di godere di ampio giardino privato di oltre 700mq.l'immobile viene realizzato utilizzando materiali e tecniche di ultima generazione per assicurare un' elevatissima resistenza antisismica, isolamento acustico, alta efficienza energetica e basso costo di manutenzione nel tempo per l'acquirente. La fase progettuale attuale permette inoltre un'ampia possibilità di personalizzazione. tra i servizi erogati dall'agenzia immobiliare principe umberto, ci sono anche le valutazioni, stime, consulenze pratiche di accesso al mutuo e grazie alla collaborazione stretta con studi notarili, geometri e architetti, riusciamo a fornire un servizio completo nell'aspetto pratico e burocratico.attenzione: si comunica che l'indirizzo riportato nell'annuncio non corrisponde all'esatta collocazione dell'immobile, per informazioni sulla sua precisa localizzazione e per le planimetrie si prega di contattare l'agenzia: immobiliare principe casa - piazza maggiore, 20 - este (pd) oppure contattare il numero indirizzo e-mail per altri annunci visita il nostro sito




Caratteristiche immobile:
Codice inserzione: 1747622152
Rif. Annuncio: S389
Provincia: Padova
Comune: Baone
Superficie (Mq) : 180 Mq.
Tipo immobile: Case e ville a schiera
Stato immobile: nuovo
Anno costruzione/ristrutturazione: 2025
Piano: 1
Camere: 3
Garage: Singolo
Posti auto scoperti: 1 posto auto
Terrazze: 2

Costi:
Prezzo € 382.000


Efficienza energetica:
Classe energetica: A1
Riscaldamento: autonomo a pavimento