home page > Annunci immobiliari in Italia > Veneto > Padova > Baone > Case e ville indipendenti in vendita > Scheda immobile

Case e ville indipendenti in vendita a Baone

COMPILA IL MODULO SOTTOSTANTE PER RICEVERE MAGGIORI INFORMAZIONI







Invia la richiesta ad altre agenzie
Accetto il trattamento dei miei dati



Immobiliare principe umberto

Via principe umberto 54/b
35042 Este (PD)

042950199    Riferimenti: Monica Cogo

Baone
Prezzo: info in agenzia
1
1
60
1
1



Descrizione:
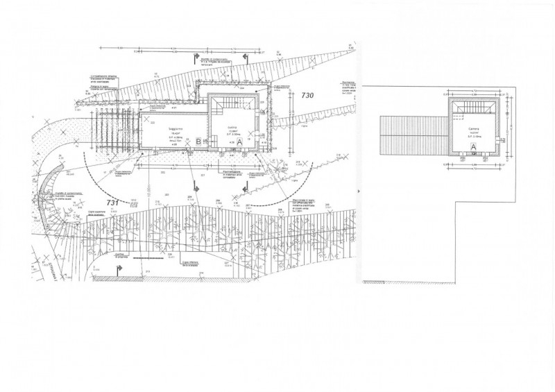
Proponiamo a baone, immersa nel verde, casa singola da ristrutturare di 60 mq. L'edificio secondo progetto, in classico stile rustico, è composto al piano terra da ingresso soggiorno cucina e bagno, al piano primo c'è una camera da letto matrimoniale.l'immobile è a due passi dal cento di baone, ampio giardino privato di 1200 mq. Con pergolato in legno per posto auto, pannelli fotovoltaici, ingresso indipendente, vista panoramica, ottimo affarecomuni limitrofi ospedaletto eug., carceri, baone, arquà petrarca, monselice, s. Elena. Con un'esperienza di oltre trent'anni, l'immobiliare principe umberto opera con professionalità nel campo dell'intermediazione di immobili e aziende fornendo servizi mirati e consulenze personalizzate. Nell'acquisto, nella vendita, nell'affitto e nella progettazione, trattiamo con la stessa cura alloggi di piccole e grandi dimensioni.attenzione: si comunica che l'indirizzo riportato nell'annuncio non corrisponde all'esatta collocazione dell'immobile, per informazioni sulla sua precisa localizzazione e per le planimetrie si prega di contattare l'agenzia.immobiliare principe umberto via principe umberto 54/b este (pd) oppure contattare il numero indirizzo e-mail per altri annunci visita il nostro sito rif. S83




Caratteristiche immobile:
Codice inserzione: 1765857831
Rif. Annuncio: S83
Provincia: Padova
Comune: Baone
Superficie (Mq) : 60 Mq.
Tipo immobile: Case e ville indipendenti
Stato immobile: ristrutturato
Anno costruzione/ristrutturazione: 2019
Piano: 1
Camere: 1
Posti auto scoperti: 1 posto auto
Bagni: 1

Costi:
Prezzo info in agenzia


Efficienza energetica: