home page > Annunci immobiliari in Italia > Veneto > Padova > Brugine > Case e ville a schiera in vendita > Scheda immobile

Case e ville a schiera in vendita a Brugine

COMPILA IL MODULO SOTTOSTANTE PER RICEVERE MAGGIORI INFORMAZIONI







Invia la richiesta ad altre agenzie
Accetto il trattamento dei miei dati



L'industriale agenzia immobiliare di zecchin pamela

Via castello 49a
35028 Piove di Sacco (PD)

0495841160    3393568237    Riferimenti: Pamela Zecchin

Brugine
Prezzo: € 310.000
3
2
140
1



Descrizione:
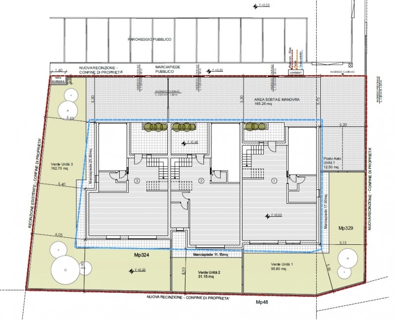
Situate a brugine, in posizione comoda a raggiungere facilmente tutti i servizi, vi proponiamo porzioni di trifamiliare in fase di costruzione.le abitazioni sono sviluppate su due livelli e cosù distribuite: al piano terra l'ingresso porta direttamente nella zona living, dal soggiorno con angolo cottura è possibile uscire direttamente all'esterno, proseguendo verso il disimpegno accediamo al bagno/lavanderia e al garage comunicante all'abitazione.il piano primo ha ben due camere matrimoniali, una terza camera doppi, ripostiglio e bagno.l'ape sara'disponibile non appena l'immobile verra' ultimatotutto ben distribuito nei suoi 100 mq circa, permettendovi cosù di godere appieno ogni singolo locale.potrete inoltre godervi un giardino tutto per voi, per rilassarvi insieme alla famiglia o con gli amici, far giocare i bimbi in tutta tranquillità.questa soluzione abitativa è realizzata con tecnologie di ultima generazione a basso consumo energetico, ed è dotata di:- classe energetica prevista a4- riscaldamento a pavimento,- ventilazione meccanica controllata,- impianto fotovoltaicoprezzi a partire da 310.000 euro.soluzione assolutamente da non perdere se state cercando proprio queste caratteristiche, allora non aspettate, chiamateci e saremo felici di approfondire con voi ogni aspetto.l'indirizzo indicato nell'annuncio ed il puntatore visualizzato nella mappa per motivi di privacy sono solamente indicativi.siamo a vostra disposizione per fornirvi ulteriori informazionipotete scriverci a chiamarci o inviarci un messaggio su whatsapppamela cel l'industriale agenzia immobiliare di zecchin pamelavia castello n. 49a35028 piove di sacco pdtel




Caratteristiche immobile:
Codice inserzione: 1762400663
Rif. Annuncio: F146
Provincia: Padova
Comune: Brugine
Superficie (Mq) : 140 Mq.
Tipo immobile: Case e ville a schiera
Stato immobile: nuovo
Anno costruzione/ristrutturazione: 2025
Piano: 1
Camere: 3
Garage: Singolo
Bagni: 2
Terrazze: 2

Costi:
Prezzo € 310.000


Efficienza energetica:
Classe energetica: Immobile non soggetto all'obbligo di certificazione
Riscaldamento: autonomo a pavimento