home page > Annunci immobiliari in Italia > Veneto > Padova > Carmignano di Brenta > Negozi uffici capannoni in vendita > Scheda immobile

Negozi uffici capannoni in vendita a Carmignano di Brenta

COMPILA IL MODULO SOTTOSTANTE PER RICEVERE MAGGIORI INFORMAZIONI







Invia la richiesta ad altre agenzie
Accetto il trattamento dei miei dati



Palladio re group

Viale del lavoro 36
36100 Vicenza

0444341859    Riferimenti: Fabio Salvadore

Carmignano di Brenta
Prezzo: info in agenzia
3500
1



Descrizione:
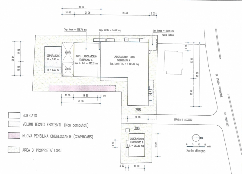
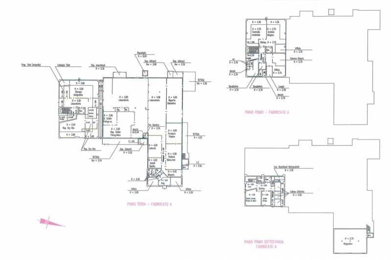
In zona comoda e facilmente accessibile, proponiamo capannone industriale di complessivi 3.000 mq coperti, caratterizzato da ampie altezze interne variabili da 5 a 7 metri, ideale per attività produttive, artigianali o di stoccaggio.l'immobile si compone di due fabbricati (a e b), entrambi dotati di spazi funzionali e ben distribuiti, oltre a un'ampia area esterna esclusiva di circa 2.500 mq, perfetta per la manovra e il parcheggio di mezzi pesanti.fabbricato a- superficie complessiva:- laboratorio 'amp' di 623,21 mq- laboratorio 'lorj' di 1.584,16 mqpiano terra:- 5 laboratori per attività produttive- reparto stampa serigrafica- reparto saldatura e fotografico- magazzino- reparto galvanica- area foratura piastrelle- 3 tettoie esterne- 2 ufficipiano primo:- area controllo materiali- archivio/magazzino- ufficio direzionale- camera oscura- loggia- 2 bagni con docce e spogliatoipiano primo sottostrada:- cabina elettrica- locale compressori e condizionamento- pompa colore- locale macchinari- montacarichiil fabbricato a dispone inoltre di impianto di depurazione delle acque di lavorazione e spazi perfettamente predisposti per attività chimiche o industriali complesse.fabbricato blaboratorio di 263,89 mq, ideale come spazio produttivo complementare o reparto di servizio.punti di forza:- area esterna di 2.500 mq- due ampi accessi carrai- impianto di depurazione già funzionante- struttura versatile e pronta all'uso- ottima accessibilità e viabilitàsoluzione ideale per aziende che necessitano di ampie superfici produttive, impianti tecnici già predisposti e spazi suddivisi in modo efficiente.contattaci per fissare una visita e scoprire tutti i dettagli di questa soluzione unica.palladio re group viale del lavoro 36, |




Caratteristiche immobile:
Codice inserzione: 1762747210
Rif. Annuncio: V12-13
Provincia: Padova
Comune: Carmignano di Brenta
Superficie (Mq) : 3500 Mq.
Tipo immobile: Negozi uffici capannoni
Piano: 1

Costi:
Prezzo info in agenzia


Efficienza energetica: