home page > Annunci immobiliari in Italia > Veneto > Padova > Casale di Scodosia > Negozi uffici capannoni in vendita > Scheda immobile

Negozi uffici capannoni in vendita a Casale di Scodosia

COMPILA IL MODULO SOTTOSTANTE PER RICEVERE MAGGIORI INFORMAZIONI







Invia la richiesta ad altre agenzie
Accetto il trattamento dei miei dati



Immobiliare principe umberto

Via principe umberto 54/b
35042 Este (PD)

042950199    Riferimenti: Monica Cogo

Casale di Scodosia
Prezzo: € 900.000
2800



Descrizione:
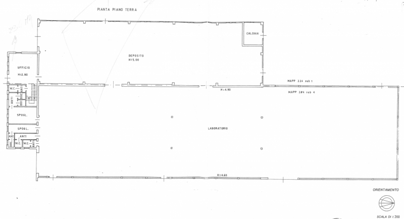
Rif. Cap07 - vendesi complesso industriale composto da capannone principale di 1.970 mq, suddiviso in due unità rispettivamente di 1.400 mq e 570 mq, uffici di cca 230 mq, oltre a ulteriore capannone indipendente di circa 840 mq.gli spazi si prestano a molteplici destinazioni d'uso, tra cui attività produttive, logistiche e di deposito, garantendo elevata flessibilità operativa. La suddivisione consente un utilizzo sia unitario che separato delle superfici, adattandosi alle diverse esigenze aziendali.la conformazione degli immobili permette una razionale organizzazione degli spazi interni e una gestione efficiente delle attività, rendendo la soluzione ideale per imprese che necessitano di ampie metrature e versatilità funzionale.attenzione: si comunica che l'indirizzo riportato nell'annuncio non corrisponde all'esatta collocazione dell'immobile, per informazioni sulla sua precisa localizzazione e per le planimetrie si prega di contattare l'agenzia.immobiliare principe casa - piazza maggiore, 20 - este (pd) oppure contattare il numero indirizzo e-mail per altri annunci visita il nostro sito




Caratteristiche immobile:
Codice inserzione: 1770177953
Rif. Annuncio: CAP07
Provincia: Padova
Comune: Casale di Scodosia
Superficie (Mq) : 2800 Mq.
Tipo immobile: Negozi uffici capannoni
Anno costruzione/ristrutturazione: 2001

Costi:
Prezzo € 900.000


Efficienza energetica: