home page > Annunci immobiliari in Italia > Veneto > Padova > Cervarese Santa Croce > Case e ville a schiera in vendita > Scheda immobile

Case e ville a schiera in vendita a Cervarese Santa Croce

COMPILA IL MODULO SOTTOSTANTE PER RICEVERE MAGGIORI INFORMAZIONI







Invia la richiesta ad altre agenzie
Accetto il trattamento dei miei dati



My home selva s.r.l.

Via padova 12/e
35030 Selvazzano Dentro (PD)

0498686040    Riferimenti: MYHOMEGROUP Selvazzano

Cervarese Santa Croce
Prezzo: € 300.000
A4
3
2
160
1
1



Descrizione:
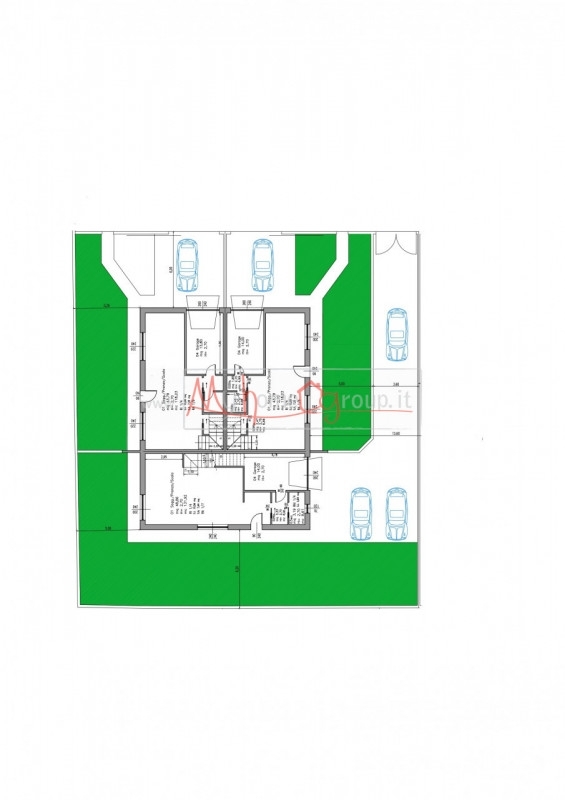
Cervarese santa croce - (rif.v082-s) - in vendita una splendida trifamiliare ad angolo attualmente in fase di costruzione. Questa abitazione completamente indipendente si distingue per il suo giardino privato avvolgente su 3 lati, ideale per chi cerca uno spazio esterno da vivere e godere con la famiglia e gli amici.l'immobile è progettato con attenzione ai dettagli: al piano terra troverete un ingresso che conduce ad un luminoso soggiorno con angolo cucina (con possibilità di separare gli ambienti), bagno, utile ripostiglio e comodo garage. Al primo piano si sviluppa la zona notte composta da una spaziosa camera matrimoniale, due camere singole perfette per i bambini o come studio, un secondo bagno padronale, lavanderia e/o ripostiglio, poggiolo.questa soluzione residenziale sarà caratterizzata da finiture di pregio personalizzabili dall'acquirente ed è realizzata utilizzando tecnologie costruttive all'avanguardia che garantiscono un'eccellente efficienza energetica con classe a4.posizione strategica grazie alla sua vicinanza ai principali servizi della vita quotidiana tra cui scuole, negozi e aree verdi. La tranquillità del contesto circostante rende questa proprietà particolarmente adatta a famiglie che desiderano vivere lontane dal caos cittadino senza rinunciare alle comodità.non perdere l'occasione di acquistare questa fantastica trifamiliare! chiamaci per avere ulteriori informazioni o per fissare un appuntamento: agenzia immobiliare myhomegroup - via padova 12/e, 35030 selvazzano dentro - pd - tel vendere per comprare? nessun problema, ci pensiamo noi!vuoi acquistare la tua nuova casa ma hai bisogno di vendere prima? my home group ti offre un servizio completo per la vendita del tuo immobile, aiutandoti a ottenere il massimo valore in tempi rapidi.valutazione gratuita e senza impegnoscopri quanto vale la tua casa!prenota subito una valutazione gratuita con i nostri esperti.https:// una valutazioneaffidati a noi per una gestione semplice e professionale della vendita del tuo immobile!l'agenzia myhomegroup di selvazzano dentro, copre le zone di tencarola, caselle, san domenico, feriole, abano terme, montegrotto, saccolongo, teolo, torreglia, cervarese santa croce, mestrino, rubano, padova.




Caratteristiche immobile:
Codice inserzione: 1768276356
Rif. Annuncio: V082-S
Provincia: Padova
Comune: Cervarese Santa Croce
Superficie (Mq) : 160 Mq.
Tipo immobile: Case e ville a schiera
Stato immobile: nuovo
Anno costruzione/ristrutturazione: 2026
Piano: 1
Camere: 3
Garage: Singolo
Posti auto scoperti: 1 posto auto
Bagni: 2

Costi:
Prezzo € 300.000


Efficienza energetica:
Classe energetica: A4
Indice di prestazione energetica (EPgl): 26 kWh/mq annui
Riscaldamento: autonomo a pavimento