home page > Annunci immobiliari in Italia > Veneto > Padova > Conselve > Case e ville indipendenti in vendita > Scheda immobile

Case e ville indipendenti in vendita a Conselve

COMPILA IL MODULO SOTTOSTANTE PER RICEVERE MAGGIORI INFORMAZIONI







Invia la richiesta ad altre agenzie
Accetto il trattamento dei miei dati



Agenzia 2000 di lazzarin vilma

Via verdi 3/b
35026 Conselve (PD)

3897138170    3897138170    Riferimenti: Vilma Lazzarin

Conselve
Prezzo: € 90.000
460



Descrizione:
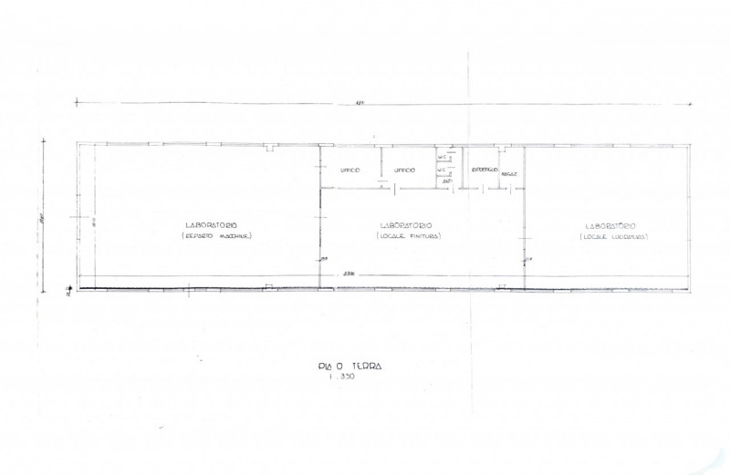
Vuoi creare una bellissima villa come un modernissimo loft openspace a tuo piacimento su due livelli con grandi vetrate su di un bel giardino e con piscina ??? !!! e' una ex falegnameria trasformabile nella villa dei tuoi sogni !!!abbiamo proprio quello che fa per te !!!sono vilma lazzarin, a conselve, vendo una ex falegnameria, trasformabile in una bellissima abitazione come un modernissimo loft; e' un bel capannone openspace con tetto a volta di 460 mq luminosissimo, posizionato su di un lotto di 1042 mq.puo' diventare una bellissima villa a due livelli con vetrate dove al piano terra abbiamo uno spaziosissimo e luminosissimo soggiorno e una grande cucina, grande bagno e varie uscite sul giardino; un bel soppalco con tre camere da letto un bagno e camera padronale matrimoniale con bagno privato all'interno.naturalmente un bellissimo giardino con la tua piscina per divertirti con i tuoi amici !!!caratteristiche specifiche:460 mq openspace1042mq giardinocodice di riferimento annuncio s109attenzione: il prezzo si intende solo del capannone allo stato attuale da ristrutturare e senza il progetto e quindi senza la costruzione della villa.nota bene :il presente annuncio potrebbe contenere degli errori. La descrizione dei locali potrebbe non essere conforme. Ogni condizione di vendita, metratura, specifica o altro riguardante l'immobile o le condizioni di vendita vengono concordate in fase di appuntamento e comunque prima di una eventuale proposta di acquisto.chiamami per vendere o comprare casa !quanto vale la tua casa ?valutazione gratuita e il compratore giusto ti aspetta !ho anche la casa per te ! visita immobiliare, offre ottimi servizi per i suoi clienti tra cui consulenza per l'accesso al credito, assistenza tecnica effettuata da professionisti del settore, collaborazione stretta con studi notarili, valutazione immobili, contratti di locazione.agenzia2000 immobiliare, il tuo partner per i tuoi investimenti immobiliari.agenzia2000 immobiliare telefono via verdi 3/b conselve 35026 (pd) info @agenzia2000.it




Caratteristiche immobile:
Codice inserzione: 1760323694
Rif. Annuncio: S109
Provincia: Padova
Comune: Conselve
Superficie (Mq) : 460 Mq.
Tipo immobile: Case e ville indipendenti
Anno costruzione/ristrutturazione: 1967

Costi:
Prezzo € 90.000


Efficienza energetica:
Classe energetica: Immobile non soggetto all'obbligo di certificazione