home page > Annunci immobiliari in Italia > Veneto > Padova > Este > Case e ville indipendenti in vendita > Scheda immobile

Case e ville indipendenti in vendita a Este

COMPILA IL MODULO SOTTOSTANTE PER RICEVERE MAGGIORI INFORMAZIONI







Invia la richiesta ad altre agenzie
Accetto il trattamento dei miei dati



Immobiliare principe umberto

Via principe umberto 54/b
35042 Este (PD)

042950199    Riferimenti: Monica Cogo

Este
Prezzo: € 278.000
A4
2
2
110
Ultimo piano
1



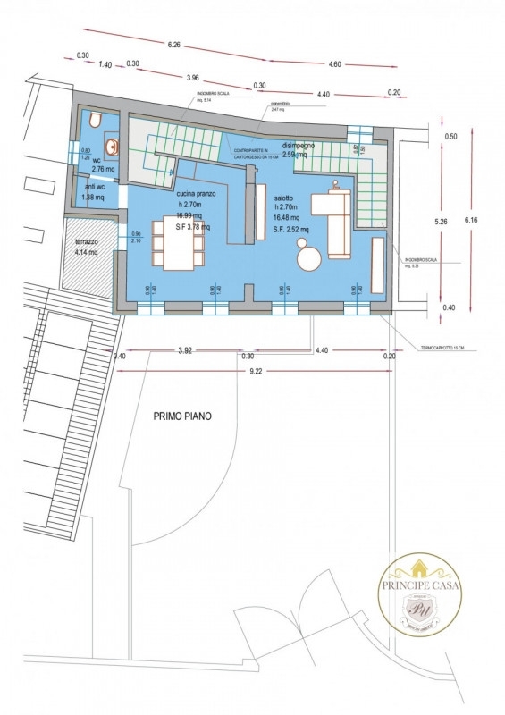
Descrizione:
Rif. Be25 - proponiamo in esclusiva presso la nostra agenzia porzione indipendente di bifamiliare di nuova costruzione, situata a pochi passi dal centro e comoda sia a tutti i servizi sia alle vie di comunicazione.l'immobile ci accoglie con un ingresso indipendente dal giardino privato, che ci porta al piano abitativo cosù composto: cucina e soggiorno in soluzione semi open space, bagno finestrato con antibagno ed esclusiva terrazza abitabile ideale per pranzi all'aperto e momenti di relax. salendo al piano successivo troviamo la zona notte con due camere matrimoniali, disbrigo e bagno finestrato. questa abitazione rappresenta il perfetto equilibrio tra le più avanzate tecnologie impiantistiche e le innovative tecniche costruttive. Ogni dettaglio, dalla selezione dei materiali all'armoniosa integrazione degli spazi interni ed esterni, è stato progettato peroffrire un ambiente accogliente, funzionale e sostenibile per chi lo vive.l'unità prevede installazione di impianto fotovoltaico da 4,5 kw e pompa di calore e si presenta come soluzione ideale per chi cerca indipendenza, tranquillità e stile senza rinunciare alla comodità della vita in centro.tra i servizi erogati dall'agenzia immobiliare principe umberto, ci sono anche le valutazioni, stime, consulenze pratiche di accesso al mutuo e grazie alla collaborazione stretta con studi notarili, geometri e architetti, riusciamo a fornire un servizio completo nell'aspetto pratico e burocratico.attenzione: si comunica che l'indirizzo riportato nell'annuncio non corrisponde all'esatta collocazione dell'immobile, per informazioni sulla sua precisa localizzazione e per le planimetrie si prega di contattare l'agenzia.immobiliare principe casa - piazza maggiore,20 - este (pd) oppure contattare il numero indirizzo e-mail per altri annunci visita il nostro sito




Caratteristiche immobile:
Codice inserzione: 1755744201
Rif. Annuncio: BE25
Provincia: Padova
Comune: Este
Superficie (Mq) : 110 Mq.
Tipo immobile: Case e ville indipendenti
Stato immobile: ristrutturato
Anno costruzione/ristrutturazione: 2025
Piano: Ultimo piano
Camere: 2
Posti auto scoperti: 1 posto auto
Bagni: 2 + lavanderia
Terrazze: 1

Costi:
Prezzo € 278.000


Efficienza energetica:
Classe energetica: A4
Indice di prestazione energetica (EPgl): 59 kWh/mq annui