home page > Annunci immobiliari in Italia > Veneto > Padova > Este > Negozi uffici capannoni in vendita > Scheda immobile

Negozi uffici capannoni in vendita a Este

COMPILA IL MODULO SOTTOSTANTE PER RICEVERE MAGGIORI INFORMAZIONI







Invia la richiesta ad altre agenzie
Accetto il trattamento dei miei dati



Studio itaca immobiliare

Via manin 48
35121 Padova

0496732658    Riferimenti: Marco Masiero

Este
Prezzo: € 300.000
E
595
Piano terra



Descrizione:
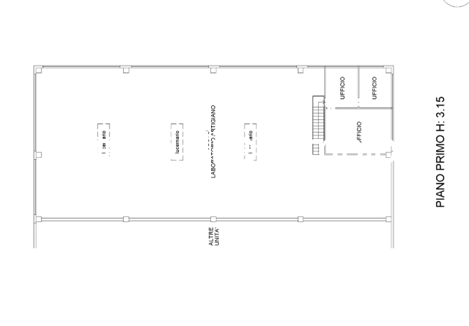
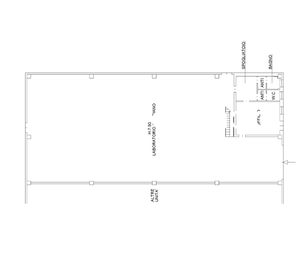
A este, nella prima zona industriale, proponiamo un capannone artigianale di 600 mq, edificato nel 2003 e mantenuto in condizioni impeccabili. l'immobile si compone di un'ampia area produttiva, affiancata da un locale dedicato all'accoglienza clienti, due uffici ben distribuiti e due bagni. Gli spazi risultano funzionali, luminosi e pronti all'uso, ideali per attività artigianali o per chi cerca un capannone funzionale e subito operativo. all'esterno è presente un ampio parcheggio che garantisce ottima facilità di manovra anche per mezzi di grandi dimensioni, rendendo l'accesso semplice e agevole. la posizione, strategica e ben collegata, rappresenta un ulteriore valore aggiunto per chi cerca un capannone efficiente e di immagine.




Caratteristiche immobile:
Codice inserzione: 1773978346
Rif. Annuncio: INCA001
Provincia: Padova
Comune: Este
Superficie (Mq) : 595 Mq.
Tipo immobile: Negozi uffici capannoni
Stato immobile: usato
Anno costruzione/ristrutturazione: 2024
Piano: Piano terra

Costi:
Prezzo € 300.000


Efficienza energetica:
Classe energetica: E
Indice di prestazione energetica (EPgl): 453.33 kWh/mc annui