home page > Annunci immobiliari in Italia > Veneto > Padova > Legnaro > Case e ville a schiera in vendita > Scheda immobile

Case e ville a schiera in vendita a Legnaro

COMPILA IL MODULO SOTTOSTANTE PER RICEVERE MAGGIORI INFORMAZIONI







Invia la richiesta ad altre agenzie
Accetto il trattamento dei miei dati



Veneto case roncaglia

Via g. Marconi 84
35020 Ponte San Nicolò (PD)

0498961955

Legnaro
Prezzo: € 310.000
A4
3
2
140



Descrizione:
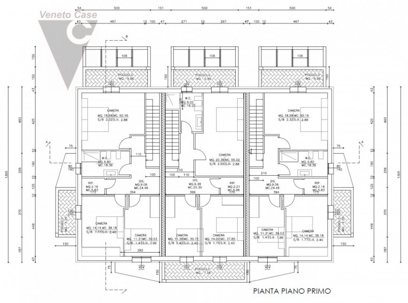
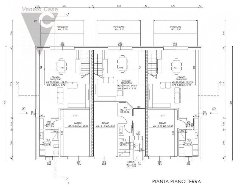
Alle porte del centro di legnaro, su nuovo quartiere residenziale in via di edificazione, proponiamo in vendita porzioni di trifamiliare centrale attualmente in costruzione. Gli immobili si svilupperanno su 2 livelli e saranno dotati di ingresso indipendente e scoperti privati di circa 80 mq con possibilità di parcheggiare una seconda auto all'interno della tua proprietà. Vanteranno tutte le ultime tecnologie per il risparmio energetico e saranno consegnati entro fine 2026. Al proprio interno si comporranno di ampie zone giorno open spece con uscite su giardino privato, bagno e garage al piano terra. Al piano primo 3 spaziose camere, di cui una matrimoniale di ben 20 mq, con uscita su poggiolo, ulteriore matrimoniale sempre con uscita su un proprio poggiolo, stanza singola, utile ripostiglio e un grande bagno. A livello tecnico gli immobili saranno dotati di:-cappotto esterno di 12 cm-riscaldamento a pavimento-pompa di calore daikin- fotovoltaico per 4,3 kw-vmc-serramenti in legno triplo vetrocamerainoltre, garage con sezionale motorizzato incluso nel prezzo.costruzioni fatte ad opera d'arte da una solida impresa edile che lavora nella zona da anni e che ha 'dato casa' a tante famiglie in questi anni. per maggiori informazioni contattaci e saremo lieti di darti tutta la consulenza necessaria.classe a4 ipe 8,32 kwh/mq annoeuro: 310.000,00 rif-l-176veneto case - roncagliaponte san nicolò (pd) - via marconi, vicinanze di padova, ponte san nicolò, legnaro, sant'angelo di piove, polverara, casalserugo, brugine, voltabarozzo, crocefisso, salboro, guizza, albignasego.




Caratteristiche immobile:
Codice inserzione: 1762833179
Rif. Annuncio: L-176
Provincia: Padova
Comune: Legnaro
Superficie (Mq) : 140 Mq.
Tipo immobile: Case e ville a schiera
Stato immobile: nuovo
Anno costruzione/ristrutturazione: 2025
Camere: 3
Garage: Singolo
Bagni: 2

Costi:
Prezzo € 310.000


Efficienza energetica:
Classe energetica: A4
Indice di prestazione energetica (EPgl): 8.32 kWh/mq annui
Riscaldamento: autonomo a pavimento