home page > Annunci immobiliari in Italia > Veneto > Padova > Legnaro > Case e ville a schiera in vendita > Scheda immobile

Case e ville a schiera in vendita a Legnaro

COMPILA IL MODULO SOTTOSTANTE PER RICEVERE MAGGIORI INFORMAZIONI







Invia la richiesta ad altre agenzie
Accetto il trattamento dei miei dati



La piramide agenzia immobiliare

Via belfiore 2/a
35121 Padova

0498756606    Riferimenti: Agenzia La Piramide

Legnaro
Prezzo: € 320.000
3
2
160
Ultimo piano



Descrizione:
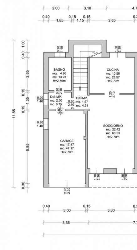
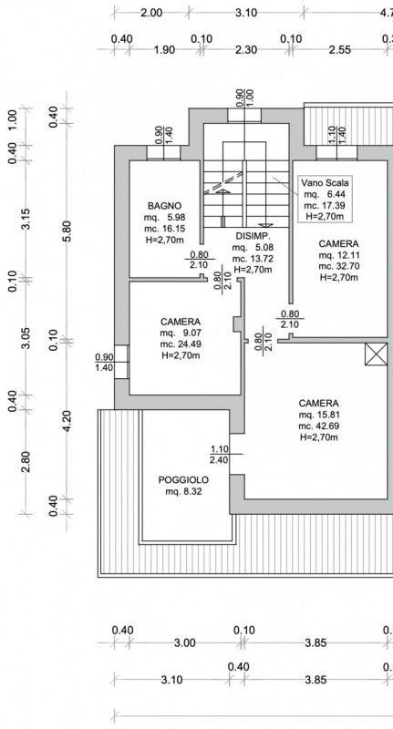
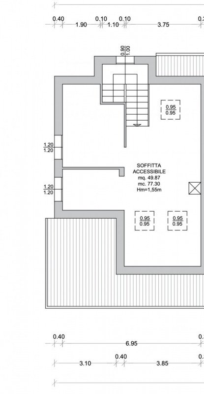
Porzione di testa di trifamiliare nuova ampi spazi e mansarda abitabileproponiamo in vendita elegante porzione di trifamiliare di nuova costruzione, caratterizzata da generose metrature e distribuita su tre livelli, per un totale di circa 160 m.al piano terra troviamo un ingresso indipendente, ampio soggiorno luminoso, cucina separata abitabile, bagno finestrato e garage collegato internamente.salendo al primo piano, la zona notte è composta da tre camere da letto a scalare, secondo bagno finestrato e poggiolo.il secondo piano ospita una spaziosa mansarda abitabile, ideale per ricavare ulteriori due camere e un terzo bagno finestrato, offrendo cosù massima flessibilità e potenzialità di personalizzazione degli spazi.completano la proprietà un piccolo scoperto esterno privato, perfetto per chi cerca indipendenza senza rinunciare alla praticità.la soluzione viene consegnata completamente nuova, con finiture moderne e predisposizioni tecnologiche di ultima generazione.punti di forza:- nuova costruzione- spazi interni ampi e ben distribuiti- mansarda abitabile con possibilità di ulteriori camere e bagno- doppio servizio finestrato + predisposizione terzo- ingresso indipendente e garageperfetta per famiglie che desiderano comfort, indipendenza e la possibilità di personalizzare gli spazi secondo le proprie esigenze.contattaci per maggiori informazioni o per organizzare una visita!classe energetica in fase di definizione, immobile in costruzionerif 959




Caratteristiche immobile:
Codice inserzione: 1762400507
Rif. Annuncio: 959
Provincia: Padova
Comune: Legnaro
Superficie (Mq) : 160 Mq.
Tipo immobile: Case e ville a schiera
Stato immobile: nuovo
Piano: Ultimo piano
Camere: 3
Garage: Singolo
Bagni: 2
Terrazze: 1

Costi:
Prezzo € 320.000


Efficienza energetica: