home page > Annunci immobiliari in Italia > Veneto > Padova > Legnaro > Case e ville a schiera in vendita > Scheda immobile

Case e ville a schiera in vendita a Legnaro

COMPILA IL MODULO SOTTOSTANTE PER RICEVERE MAGGIORI INFORMAZIONI







Invia la richiesta ad altre agenzie
Accetto il trattamento dei miei dati



Veneto case roncaglia

Via g. Marconi 84
35020 Ponte San Nicolò (PD)

0498961955

Legnaro
Prezzo: € 330.000
A4
3
2
145



Descrizione:
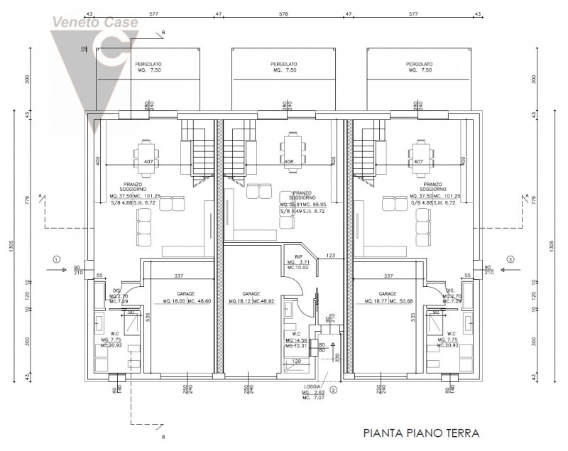
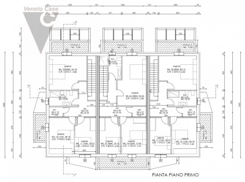
Dove ci troviamo? alle porte del centro di legnaro, su nuovo quartiere residenziale in via di edificazione. Comodi alla zona industriale di padova e all'autostrada. chi costruirà? un'impresa leader nella zona che ha creato centinaia di immobili a legnaro e nei paesi limitrofi, riconosciuta per la sua solidità e per costruzioni di ottima qualità. che caratteristiche hanno gli immobili?sono studiati per soddisfare le esigenze abitative di una famiglia moderna. Vantano ingresso indipendente e scoperti privati che vanno dai 200 ai 250 mq per ogni immobile. All'interno si compongono di ampie zone giorno open spece di circa 38 mq, con uscita su giardino privato, bagno e garage al piano terra. Al piano primo 3 spaziose camere, di cui una matrimoniale di quasi 20 mq, con uscita su poggiolo, ulteriore matrimoniale sempre con uscita su un proprio poggiolo, stanza singola, utile ripostiglio e un grande bagno.che dotazioni tecniche offre?l'intero complesso è stato progettato con grande attenzione al comfort abitativo e al risparmio energetico. Tutti gli appartamenti sono in classe energetica a4, top dell'efficienza, grazie a un involucro edilizio ad alte prestazioni che garantisce un eccellente isolamento termico e acustico.ogni unità dispone di:-impianto fotovoltaico indipendente da 4,3 kw - che contribuisce a ridurre significativamente i consumi elettrici-pompa di calore daikin - dicendo addio all'utilizzo del gas-riscaldamento a pavimento - assicura una diffusione uniforme del calore in ogni ambiente, per un comfort ideale in tutte le stagioni-ventilazione meccanica controllata - mantiene costante il ricambio d'aria, assicurando un ambiente salubre e gradevole.-cappotto esterno di 12 cm - per isolare al meglio l'involucro del tuo immobile in ogni stagione dell'anno-serramenti in legno triplo vetrocamera per un isolamento termico e acustico perfettoinoltre, garage con sezionale motorizzato nel prezzo.gli impianti e i materiali sono selezionati con cura e conformi alle normative vigenti, garantendo sicurezza e durata nel tempo.la consegna è prevista per fine 2026, con la possibilità di scelta delle finiture in base alle tue esigenze.classe a4 ipe 8,36 kwh/mq annoeuro 330.000,00 - rif l-177veneto case - roncagliaponte san nicolò (pd) - via marconi, vicinanze di padova, ponte san nicolò, legnaro, sant'angelo di piove, polverara, casalserugo, brugine, voltabarozzo, crocefisso, salboro, guizza, albignasego.




Caratteristiche immobile:
Codice inserzione: 1767586702
Rif. Annuncio: L-177
Provincia: Padova
Comune: Legnaro
Superficie (Mq) : 145 Mq.
Tipo immobile: Case e ville a schiera
Stato immobile: nuovo
Anno costruzione/ristrutturazione: 2025
Camere: 3
Garage: Singolo
Bagni: 2

Costi:
Prezzo € 330.000


Efficienza energetica:
Classe energetica: A4
Indice di prestazione energetica (EPgl): 8.32 kWh/mq annui
Riscaldamento: autonomo a pavimento