home page > Annunci immobiliari in Italia > Veneto > Padova > Loreggia > Negozi uffici capannoni in vendita > Scheda immobile

Negozi uffici capannoni in vendita a Loreggia

COMPILA IL MODULO SOTTOSTANTE PER RICEVERE MAGGIORI INFORMAZIONI







Invia la richiesta ad altre agenzie
Accetto il trattamento dei miei dati



Abitabilmente di ceccato manolo

Via valsugana 203/e
35010 San Giorgio in Bosco (PD)

0497961726    Riferimenti: Manolo Ceccato

Loreggia
Prezzo: info in agenzia
2500
Piano terra



Descrizione:
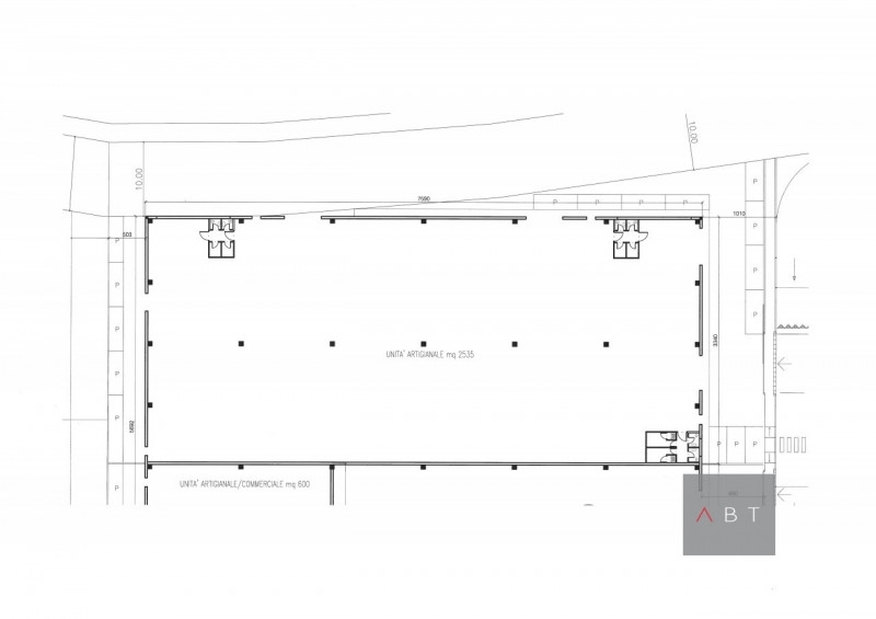
Situato in zona strategica comoda alla strada statale del santo (sr308) nuovo capannone di 2535 mq. Con circa 1400 mq. Di scoperto privato, ingresso dipendente e possibilità di personalizzazione finiture. Classe energ. In fase di definizioneper info chiamare michele cell




Caratteristiche immobile:
Codice inserzione: 1762746470
Rif. Annuncio: 018
Provincia: Padova
Comune: Loreggia
Superficie (Mq) : 2500 Mq.
Tipo immobile: Negozi uffici capannoni
Stato immobile: nuovo
Anno costruzione/ristrutturazione: 2025
Piano: Piano terra

Costi:
Prezzo info in agenzia


Efficienza energetica:
Classe energetica: Immobile non soggetto all'obbligo di certificazione